Complesso in vendita

Bedizzole, Via Benaco
€ 1.480.000
20 locali 20 locali
2500 Mq 2500 Mq
13 bagni 13 bagni

Complesso in vendita

Bedizzole, Via Benaco

Descrizione annuncio

Complesso commerciale a reddito posto fronte strada ed ubicato nel comune di Bedizzole

DESCRIZIONE E PARTICOLARITÀ

Proponiamo in vendita uno stabile indipendente a destinazione commerciale con superficie complessiva di circa 2.500 mq.

L'edificio viene venduto a reddito ed è attualmente concesso in locazione alle seguenti attività:

ristorante con camere, negozio di vendita al dettaglio di abbigliamento e casalinghi, scuola di musica e club privato.

I canoni annuali corrisposti dagli inquilini corrispondono a circa 109.000 Euro, di conseguenza la rendita annua della struttura corrisponde al 7,38%.

L'edificio si sviluppa come segue:

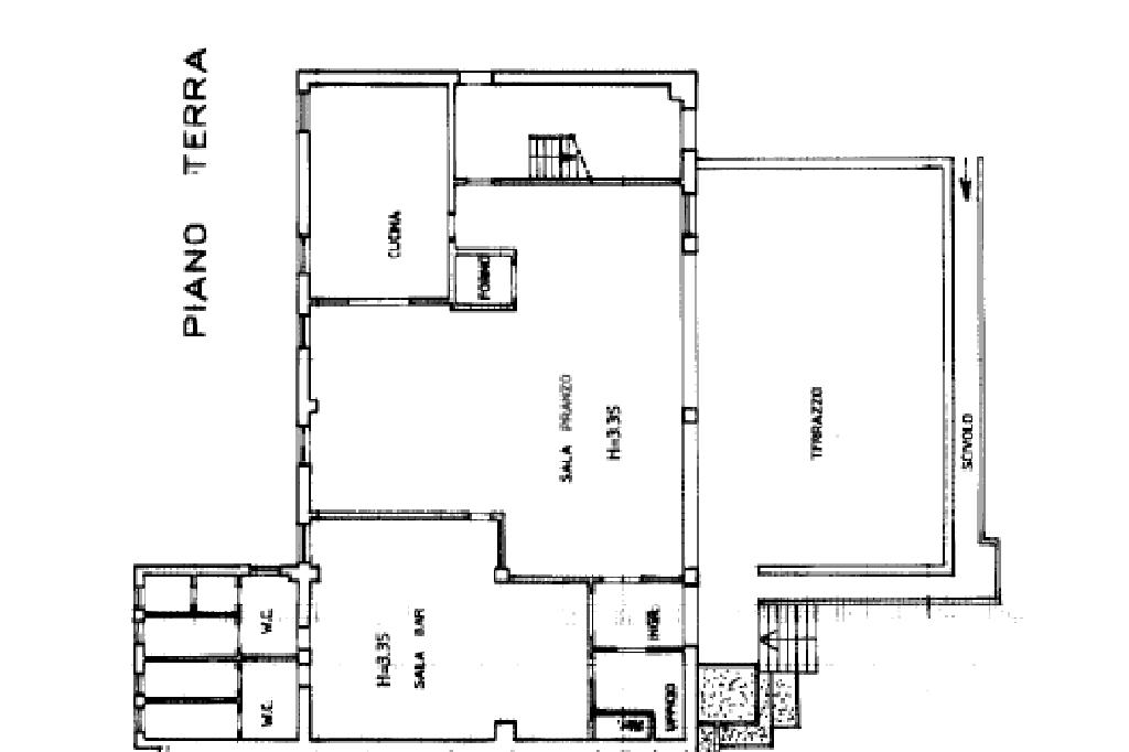
- Piano terra con superficie di circa 1.000 mq divisa tra negozio di casalinghi e ristorante

- Piano primo con superficie di circa 1.000 mq divisa in scuola di musica e dall'altro lato camere ed appartamenti collegati al ristorante

- Piano seminterrato di circa 500 mq adibito a club privato.

Sul fronte dello stabile è presente un ampio parcheggio privato ad uso pubblico, mentre sul retro un'ulteriore area asfaltata dove è presente una cubatura residua per lo sviluppo di altre costruzioni.

Maggiori informazioni in agenzia.

UBICAZIONE E CONTESTO

Bedizzole è un comune italiano di circa 12.500 abitanti della provincia di Brescia in Lombardia, collocato tra Rezzato e Gavardo in direzione lago di Garda. Il comune di Bedizzole dista circa 17 chilometri ad est dal capoluogo (Brescia) e 8 chilometri dal Lago di Garda. I caselli autostradali più vicini sono l'uscita di Brescia Est che dista 5 km e l'uscita di Desenzano che dista 12 km. La direttrice principale è l'autostrada A4 Milano - Venezia. Il paese di Bedizzole è situato ad est di Brescia, tra la fascia alta della pianura padana e i rilievi occidentali dei colli morenici. Il territorio del comune è attraversato dal fiume Chiese. Monumento di rilievo il Castello, eretto in un luogo che permetteva di dominare la pianura circostante.

Mostra tutto

Nelle vicinanze

Trasporto pubblico Trasporto pubblico
Trasporto pubblico
2,0 Km
fermata scuolabus
fermata scuolabus
2,6 Km
Ricariche auto elettriche Ricariche auto elettriche
Agriturismo Macesina
1,4 Km
Scuole Scuole
Istituto Suore Canossiane
1,3 Km
Scuola dell'Infanzia Angela Volpi
1,4 Km
Scuola Media Statale Annibale Calini
1,4 Km
Scuola Elementare Statale Alessandro Manzoni
1,4 Km
Scuola Materna Statale
1,5 Km
Farmacia Farmacia
Farmacia Barba Dott. Giulio
1,2 Km
Supermercati Supermercati
Conad
670 m
Bar Bar
Bar La Caffetteria
790 m
Locanda 3 Corone
1,3 Km
Bar
2,6 Km
Chiosco del Chiese
2,8 Km
Ristoranti Ristoranti
L'Antiga Taverna
2,3 Km
la bottega della pizza
2,6 Km
Osteria Antica Pieve
2,9 Km
Ristorante Al Mulino
3,0 Km
Trattoria Bettoletto
3,0 Km
Mostra tutto

Caratteristiche

Rif.:
60912103
Piano:
3 di 3 (Piano su più livelli)
Posti auto:
50
Balconi:
1
Condizionamento:
Autonomo
Ascensore:
No
Mostra tutto
Prezzo Prezzo
€ 1.480.000
Rata mutuo Rata mutuo
€ 7.031 / mese
Spese annue Spese annue
€ 0
Proponi il tuo prezzoProponi il tuo prezzo

Classe Energetica

Questo immobile è esente da classe energetica
Anno di costruzione:
1990
Riscaldamento:
Autonomo
Tipo impianto:
Ad aria
Tipo alimentazione:
Altro

Ti interessa visionare l'immobile?

Fissa un appuntamento  Fissa un appuntamento

Richiedi informazioni

Clicca su Leggi per aprire l'informativa
* Questi campi sono obbligatori

Calcola il tuo mutuo

Semplice e senza impegno
Anticipo

( % )
Mutuo

( % )

pochi semplici passi

inserisci i tuoi dati
Questionario completato
Grazie per aver richiesto un appuntamento senza impegno con un nostro Consulente del Credito e Assicurativo.

Hai inserito correttamente tutti i dati necessari e a breve riceverai una e-mail con un link da convalidare per inviare i tuoi dati.
Affiliato
Industriale Desenzano Srl
Viale Motta, 149 25015 Desenzano Del Garda (BS)

Il nostro staff


  • Francesca Lanzini
    Affiliata

  • Andrea Bucci
    Collaboratore

  • Francesco Bellicini
    Affiliato

  • Alessia Fontana
    Coordinatrice

  • Stefano Ghidini
    Affiliato

  • Noemi Pagliara
    Collaboratrice

  • Alberto Rigoni
    Collaboratore

  • Susanna Vincenzi
    Collaboratrice
Viale Motta, 149 25015 Desenzano Del Garda (BS)
Zona: Desenzano-Sirmione-Lonato-Padenghe-Bedizzole-Peschiera del Garda
Mostra su mappa
Orari: LUN/VEN: 8:30/12:30 - 14:00/19:00 SABATO: 8:30/12:30
Affiliato
Industriale Desenzano Srl
Viale Motta, 149 25015 Desenzano Del Garda (BS)

2026 Tecnocasa Franchising S.p.A. - P. IVA 08365160152 - Via Monte Bianco 60/A 20089 Rozzano (MI). Ogni agenzia ha un proprio titolare ed è autonoma. Privacy policy | Policy utilizzo | Cookie policy