Negozio in affitto

Bedizzole, Via Benaco - Caselle
€ 5.500 / mese
3 locali 3 locali
2400 Mq 2400 Mq
3 bagni 3 bagni

Negozio in affitto

Bedizzole, Via Benaco - Caselle

Descrizione annuncio

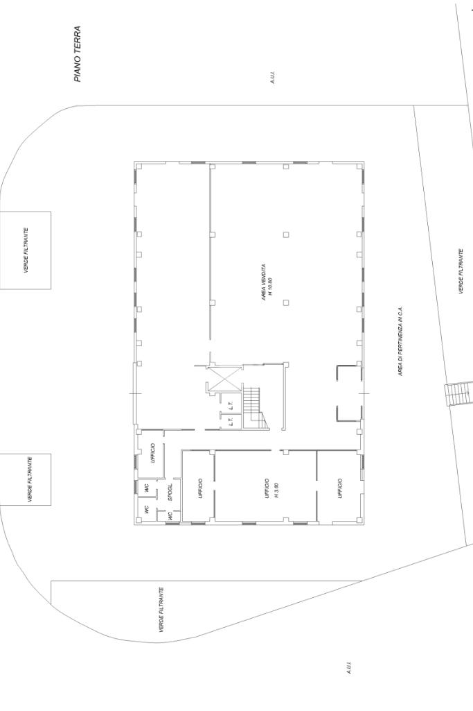
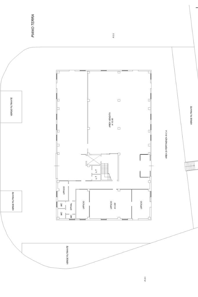
Proponiamo in locazione un negozio di 2.400mq disposto su tre livelli a Bedizzole e servito da montacarichi/ascensore.

PARTICOLARITA' E DESCRIZIONE
Ubicazione: Il negozio che proponiamo in locazione è sito in via Benaco a Bedizzole, in una zona industriale comodamente accessibile dalle principali vie di comunicazione che collegano Brescia e Lago di Garda.

Superficie e composizione: Il negozio ha una superficie di 2.400 mq distribuiti su un lotto di 2.300 mq di cui 800 mq di superficie coperta e 1.500 mq di area esterna.

La superficie complessiva è distribuita su tre livelli di 800 mq ciascuno, così attualmente disposti:

- Piano terra dedicato allo spazio espositivo con vendita all'ingrosso e uffici

- Piano primo adibito a magazzino e uffici.

- Sottotetto abitabile utilizzato come magazzino, archivio e mensa.

Caratteristiche dell’immobile: Il negozio è servito da montacarichi/ascensore per lo spostamento di merci, servizio ai dipendenti e accoglienza della clientela ai piani superiori, con portata massima di 500 kg.

Sono presenti un accesso pedonale e un accesso carraio.

Impianti: Il piano terra è provvisto di aria condizionata e riscaldamento, i piani superiori garantiscono invece il solo riscaldamento degli spazi.

L’immobile è accatastato D/8 pertanto è concessa la vendita all’ingrosso.

Il canone è soggetto ad Iva e sono presenti spese condominiali per un importo annuo di circa 1.000 euro.

Disponibile da febbraio 2026.

UBICAZIONE E CONTESTO

Bedizzole è un comune italiano di circa 12.500 abitanti della provincia di Brescia in Lombardia, collocato tra Rezzato e Gavardo in direzione lago di Garda. Il comune di Bedizzole dista circa 17 chilometri ad est dal capoluogo (Brescia) e 8 chilometri dal Lago di Garda. I caselli autostradali più vicini sono l'uscita di Brescia Est che dista 5 km e l'uscita di Desenzano che dista 12 km. La direttrice principale è l'autostrada A4 Milano - Venezia. Il paese di Bedizzole è situato ad est di Brescia, tra la fascia alta della pianura padana e i rilievi occidentali dei colli morenici. Il territorio del comune è attraversato dal fiume Chiese. Monumento di rilievo il Castello, eretto in un luogo che permetteva di dominare la pianura circostante.

Mostra tutto

Nelle vicinanze

Trasporto pubblico Trasporto pubblico
Trasporto pubblico
440 m
scuolabus
scuolabus
2,4 Km
Ricariche auto elettriche Ricariche auto elettriche
Agriturismo Macesina
2,3 Km
Scuole Scuole
Scuola Secondaria di Primo Grado
2,5 Km
Istituto Suore Canossiane
3,0 Km
Farmacia Farmacia
Farmacia Barba Dott. Giulio
2,8 Km
Supermercati Supermercati
Conad
1,3 Km
Bar Bar
Bar
2,1 Km
Bar La Caffetteria
2,4 Km
Locanda 3 Corone
3,0 Km
Ristoranti Ristoranti
la bottega della pizza
2,4 Km
Mostra tutto

Caratteristiche

Rif.:
61151797
Piano:
Su più livelli di 3 con ascensore
Totale piani:
3
Box:
1
Posti auto:
99
Balconi:
1
Mostra tutto
Prezzo Prezzo
€ 5.500 / mese
Spese annue Spese annue
€ 1.000

Classe Energetica

Questo immobile è esente da classe energetica
Anno di costruzione:
2008
Riscaldamento:
Autonomo
Tipo impianto:
Ad aria
Tipo alimentazione:
Altro

Ti interessa visionare l'immobile?

Fissa un appuntamento  Fissa un appuntamento

Richiedi informazioni

Clicca su Leggi per aprire l'informativa
* Questi campi sono obbligatori
Affiliato
Industriale Desenzano Srl
Viale Motta, 149 25015 Desenzano Del Garda (BS)

Il nostro staff


  • Francesca Lanzini
    Affiliata

  • Andrea Bucci
    Collaboratore

  • Francesco Bellicini
    Affiliato

  • Alessia Fontana
    Coordinatrice

  • Stefano Ghidini
    Affiliato

  • Noemi Pagliara
    Collaboratrice

  • Alberto Rigoni
    Collaboratore

  • Susanna Vincenzi
    Collaboratrice
Viale Motta, 149 25015 Desenzano Del Garda (BS)
Zona: Desenzano-Sirmione-Lonato-Padenghe-Bedizzole-Peschiera del Garda
Mostra su mappa
Orari: LUN/VEN: 8:30/12:30 - 14:00/19:00 SABATO: 8:30/12:30
Affiliato
Industriale Desenzano Srl
Viale Motta, 149 25015 Desenzano Del Garda (BS)

2026 Tecnocasa Franchising S.p.A. - P. IVA 08365160152 - Via Monte Bianco 60/A 20089 Rozzano (MI). Ogni agenzia ha un proprio titolare ed è autonoma. Privacy policy | Policy utilizzo | Cookie policy