Capannone in affitto

Desenzano Del Garda, Via Ticino
€ 1.750 / mese
1 locale 1 locale
350 Mq 350 Mq
1 bagno 1 bagno

Capannone in affitto

Desenzano Del Garda, Via Ticino

Descrizione annuncio

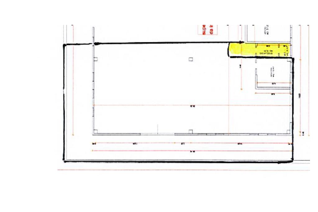
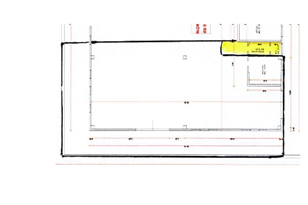
Frazionamento di capannone di 350 mq con 100 mq di area esterna sito in via Ticino Desenzano.

PARTICOLARITÀ E DESCRIZIONE

Ubicazione: L'immobile è ubicato in via Ticino a Desenzano del Garda (BS), in prossimità dell'ingresso alla tangenziale.

Superficie: la porzione disponibile per la sublocazione è di circa 350 mq, così divisi:

- area adibita a magazzino/capannone di 330 mq,

- area ufficio di 20 mq,

- area esterna di circa 100 mq.

- servizi con apposita area spogliatoio in condivisione.

Portoni: sono presenti n. 2 portoni carrai.

Prezzo: L'importo richiesto per la sublocazione è di Euro 1.750,00 oltre iva, sull’immobile non gravano spese condominiali.

Cauzione: 3 mesi di deposito cauzionale.

Libero da Giugno 2026.

UBICAZIONE E CONTESTO

Desenzano del Garda è oggi una vivace cittadina di circa 29.000 abitanti collocata all'estremità sud-ovest del Lago di Garda. il comune più popoloso del lago di Garda e il secondo della provincia di Brescia. Desenzano si trova nella parte sud-orientale della provincia di Brescia. La parte settentrionale si affaccia sul basso lago di Garda, mentre il resto del territorio si estende verso sud sulle colline moreniche. In questa zona dell'entroterra il territorio comunale confina con il Veneto (provincia di Verona). Dista circa 30 km da Brescia e 40 da Verona.

Mostra tutto

Nelle vicinanze

Trasporto pubblico Trasporto pubblico
Desenzano del Garda - Sirmione
Desenzano del Garda - Sirmione
2,6 Km
Trasporto pubblico
2,6 Km
Ricariche auto elettriche Ricariche auto elettriche
Desenzano Motori Srl | EnelX
510 m
CC Lonato del Garda Via Mantova | EnelX
1,1 Km
Burger King Lonato del Garda | evway
1,2 Km
Centro Commerciale Iper Lonato
1,7 Km
Ristorante Pizzeria Silvano - evway
2,9 Km
Scuole Scuole
Scuole
2,9 Km
Istituto tecnico e Professionale Bazoli-Polo
3,0 Km
Farmacia Farmacia
Farmacia San Giovanni Battista
1,3 Km
Iper Farma
1,4 Km
Supermercati Supermercati
Iper Lonato
1,4 Km
Esselunga
1,7 Km
Lidl
2,6 Km
Italmark
2,9 Km
Negozi Negozi
Treesse
1,5 Km
Bar Bar
Bar
460 m
Art Club
980 m
Olimpia
2,7 Km
Milky Bar
2,9 Km
Ristoranti Ristoranti
Agriturismo Cascina Graziosa
1,4 Km
La Cavallina
1,7 Km
Ristorante Pizzeria La Lucciola
2,3 Km
Sushiko
2,6 Km
La Tana del Gufo
2,7 Km
Mostra tutto

Caratteristiche

Rif.:
61172167
Piano:
Terra di 1
Totale piani:
1
Box:
1
Posti auto:
99
Balconi:
1
Mostra tutto
Prezzo Prezzo
€ 1.750 / mese
Spese annue Spese annue
€ 0

Classe Energetica

G
G
G
G
G
G
G
G
G
EP globale non rinnovabile:
341.29 kW h/m² anno
EP globale rinnovabile:
12.20 kW h/m² anno
EP invernale del fabbricato:
EP estiva del fabbricato:
Anno di costruzione:
2000
Riscaldamento:
Autonomo
Tipo impianto:
Ad aria
Tipo alimentazione:
Altro

Ti interessa visionare l'immobile?

Fissa un appuntamento  Fissa un appuntamento

Richiedi informazioni

Clicca su Leggi per aprire l'informativa
* Questi campi sono obbligatori
Affiliato
Industriale Desenzano Srl
Viale Motta, 149 25015 Desenzano Del Garda (BS)

Il nostro staff


  • Francesca Lanzini
    Affiliata

  • Andrea Bucci
    Collaboratore

  • Francesco Bellicini
    Affiliato

  • Alessia Fontana
    Coordinatrice

  • Stefano Ghidini
    Affiliato

  • Noemi Pagliara
    Collaboratrice

  • Alberto Rigoni
    Collaboratore

  • Susanna Vincenzi
    Collaboratrice
Viale Motta, 149 25015 Desenzano Del Garda (BS)
Zona: Desenzano-Sirmione-Lonato-Padenghe-Bedizzole-Peschiera del Garda
Mostra su mappa
Orari: LUN/VEN: 8:30/12:30 - 14:00/19:00 SABATO: 8:30/12:30
Affiliato
Industriale Desenzano Srl
Viale Motta, 149 25015 Desenzano Del Garda (BS)

2026 Tecnocasa Franchising S.p.A. - P. IVA 08365160152 - Via Monte Bianco 60/A 20089 Rozzano (MI). Ogni agenzia ha un proprio titolare ed è autonoma. Privacy policy | Policy utilizzo | Cookie policy