Negozio in affitto

Desenzano Del Garda, Via Crocefisso
€ 1.600 / mese
3 locali 3 locali
81 Mq 81 Mq
1 bagno 1 bagno

Negozio in affitto

Desenzano Del Garda, Via Crocefisso

Descrizione annuncio

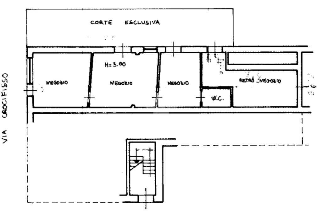
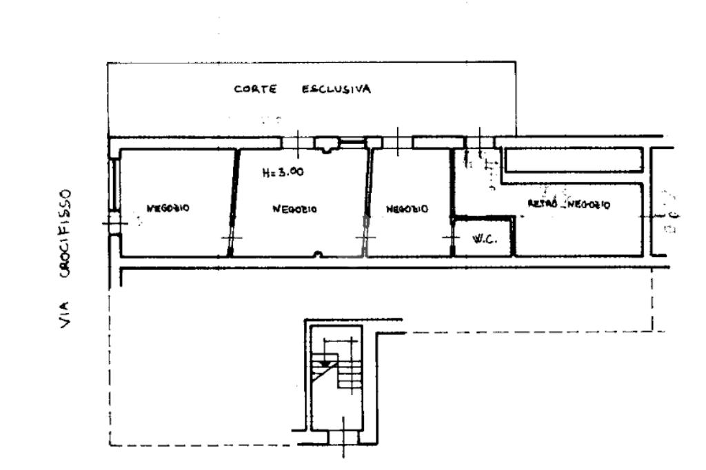
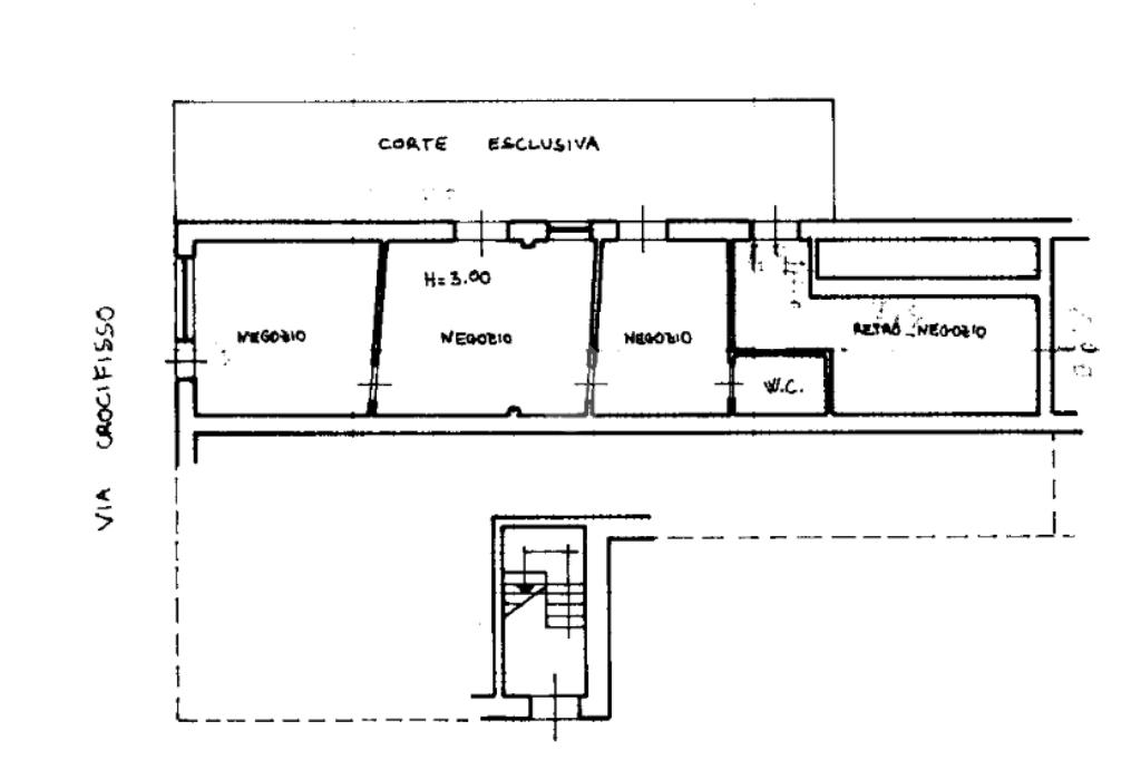
Negozio di 81 mq con 3 posti auto privati in centro storico a Desenzano.

DESCRIZIONE E PARTICOLARITA'

Ubicazione: L'immobile che proponiamo in locazione è collocato nel centro storico di Desenzano Del Garda, più precisamente in via Crocefisso.

Composizione: Il negozio di 81 mq è disposto interamente a piano terra, risulta diviso in due ambienti, garantendo così la possibilità di avere una parte di magazzino, completa di servizio igienico oltre che ad una parte di esposizione. Sono presenti n. 3 accessi al locale, oltre che delle serrande manuali.

Posti auto: A completare la soluzione 35 mq di area esterna privata che potrà essere destinata a n. 3 posti auto.

Impianti: la soluzione è riscaldata e raffrescata tramite split a muro.

Prezzo: l'importo richiesto per la locazione è di euro 1.600,00 oltre ad iva. Sono richiesti n. 3 mensilità di deposito cauzionale.

Disponibile da febbraio.

UBICAZIONE E CONTESTO

Desenzano D/G è tra le più note e conosciute località turistiche del Garda, frequentato da turisti che arrivano da tutta Europa soprattutto dall'Olanda, dalla Germania, Russia ecc... Tra le piazze piu famose di Desenzano può essere annoverata Piazza Garibaldi che offre comodità di parcheggio e non si trova in una zona a traffico limitato. Numerose sono le attività merceologiche che si affacciano sulla via, tra cui attività di somministrazione , abbigliamento ecc... Desenzano D/G gode di un'uscita autostradale a soli 3 km dal centro.

Mostra tutto

Nelle vicinanze

Trasporto pubblico Trasporto pubblico
Desenzano del Garda - Sirmione
Desenzano del Garda - Sirmione
1,1 Km
Trasporto pubblico
410 m
Via Michelangelo Dugazze
Via Michelangelo Dugazze
2,2 Km
Trasporto pubblico
330 m
Desenzano
330 m
Ricariche auto elettriche Ricariche auto elettriche
Hotel Bonotto Desenzano
210 m
Gardauno Parcheggio Desenzanino
590 m
Gardauno Parcheggio Via Agello
2,6 Km
Scuole Scuole
Scuole
170 m
Liceo statale Girolamo Bagatta
390 m
Liceo Bagatta
470 m
Istituto Alberghiero Caterina De Medici
1,3 Km
Istituto tecnico e Professionale Bazoli-Polo
1,6 Km
Farmacia Farmacia
Farmacia
150 m
Farmacia Capolaterra
470 m
Farmacia Comunale
1,3 Km
Ospedali Ospedali
Azienda Ospedaliera di Desenzano del Garda
1,4 Km
Ospedali
2,3 Km
Supermercati Supermercati
Dpiù
820 m
Italmark
1,1 Km
Lidl
1,3 Km
Simply
1,6 Km
Esselunga
2,0 Km
Negozi Negozi
PrimaDonna Collection
70 m
Wise
120 m
Champion
330 m
Minimarket
350 m
Yamamay
370 m
Bar Bar
Bar Combattenti
170 m
Bar del Porto
210 m
Bianca Caffè
450 m
Maratona Cafè
650 m
Olimpia
1,0 Km
Ristoranti Ristoranti
Osteria Sapore di Vino
30 m
Spritz & Burger
40 m
Al Fattore
90 m
la taverna del Garda
90 m
Ristorante con Pizzeria Colomba
170 m
Mostra tutto

Caratteristiche

Rif.:
61147021
Piano:
Terra di 2
Totale piani:
2
Posti auto:
3
Condizionamento:
Autonomo
Ascensore:
No
Mostra tutto
Prezzo Prezzo
€ 1.600 / mese
Spese annue Spese annue
€ 0

Classe Energetica

Questo immobile è esente da classe energetica
Anno di costruzione:
1990
Riscaldamento:
Autonomo
Tipo impianto:
Ad aria
Tipo alimentazione:
Altro

Ti interessa visionare l'immobile?

Fissa un appuntamento  Fissa un appuntamento

Richiedi informazioni

Clicca su Leggi per aprire l'informativa
* Questi campi sono obbligatori
Affiliato
Industriale Desenzano Srl
Viale Motta, 149 25015 Desenzano Del Garda (BS)

Il nostro staff


  • Francesca Lanzini
    Affiliata

  • Andrea Bucci
    Collaboratore

  • Francesco Bellicini
    Affiliato

  • Alessia Fontana
    Coordinatrice

  • Stefano Ghidini
    Affiliato

  • Noemi Pagliara
    Collaboratrice

  • Alberto Rigoni
    Collaboratore

  • Susanna Vincenzi
    Collaboratrice
Viale Motta, 149 25015 Desenzano Del Garda (BS)
Zona: Desenzano-Sirmione-Lonato-Padenghe-Bedizzole-Peschiera del Garda
Mostra su mappa
Orari: LUN/VEN: 8:30/12:30 - 14:00/19:00 SABATO: 8:30/12:30
Affiliato
Industriale Desenzano Srl
Viale Motta, 149 25015 Desenzano Del Garda (BS)

2026 Tecnocasa Franchising S.p.A. - P. IVA 08365160152 - Via Monte Bianco 60/A 20089 Rozzano (MI). Ogni agenzia ha un proprio titolare ed è autonoma. Privacy policy | Policy utilizzo | Cookie policy