Negozio in affitto

Desenzano Del Garda, Via Scavi Romani
€ 900 / mese
1 locale 1 locale
40 Mq 40 Mq
1 bagno 1 bagno

Negozio in affitto

Desenzano Del Garda, Via Scavi Romani

Descrizione annuncio

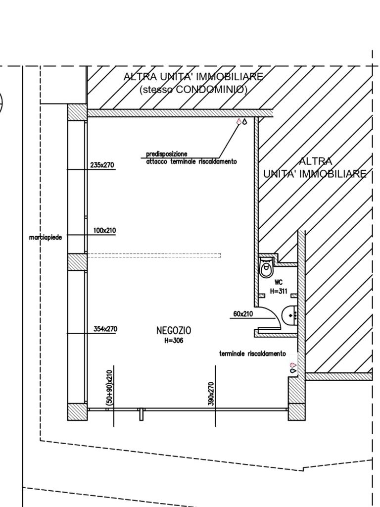
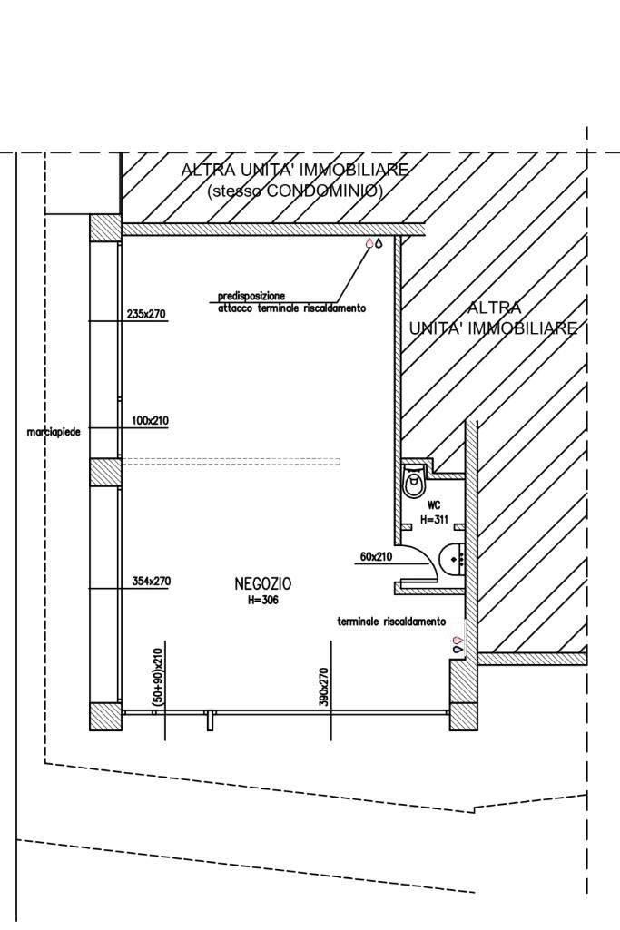
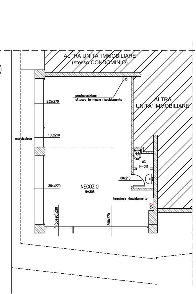
Proponiamo in locazione negozio di 40 mq con posizione angolare, sito in via Scavi Romani a Desenzano del Garda.


DESCRIZIONE E PARTICOLARITA'

Ubicazione: L'immobile è situato in una via di passaggio veicolare e pedonale nelle strette vicinanze delle vie principali del centro, più precisamente in via Scavi Romani a Desenzano del Garda (BS), limitrofo a Le Poste Italiane.

Superficie: la superficie del locale è di circa 40 mq disposta interamente su piano terra, il locale dispone di vetrine angolari affacciate sulla strada principale. Il negozio è dotato di un doppio accesso e di serrande manuali.

Servizi: La struttura è dotata da un servizio igienico.

Impianti: Il locale è dotato di un impianto di riscaldamento a gas centralizzato.

Canone di locazione: il canone di locazione è pari ad euro 900,00 non soggetti ad iva, sono inoltre presenti delle spese condominiali di euro 800,00 all’anno.

Garanzie: Vengono richiesti 3 mesi di deposito cauzionale.

Maggiori informazione in agenzia.

UBICAZIONE E CONTESTO

Desenzano del Garda è oggi una vivace cittadina di circa 29.000 abitanti collocata all'estremità sud-ovest del Lago di Garda. È il comune più popoloso del lago di Garda e il secondo della provincia di Brescia. Desenzano si trova nella parte sud-orientale della provincia di Brescia. La parte settentrionale si affaccia sul basso lago di Garda, mentre il resto del territorio si estende verso sud sulle colline moreniche. In questa zona dell'entroterra il territorio comunale confina con il Veneto (provincia di Verona). Dista circa 30 km da Brescia e 40 da Verona. Desenzano, quindi, è una località che offre la possibilità di un turismo intelligente, che si propone di unire al riposo e al divertimento una stimolante ricerca di paesaggi e di affascinanti memorie storico-ambientali. A questo si aggiunge la vicinanza di città ricche di capolavori artistici come Verona, Mantova e Brescia.

Mostra tutto

Nelle vicinanze

Trasporto pubblico Trasporto pubblico
Desenzano del Garda - Sirmione
Desenzano del Garda - Sirmione
1,2 Km
Trasporto pubblico
500 m
Via Michelangelo Dugazze
Via Michelangelo Dugazze
2,3 Km
Trasporto pubblico
460 m
Desenzano
470 m
Ricariche auto elettriche Ricariche auto elettriche
Hotel Bonotto Desenzano
90 m
Gardauno Parcheggio Desenzanino
480 m
Gardauno Parcheggio Via Agello
2,7 Km
Splendido Bay Luxury Spa Resort
2,9 Km
Scuole Scuole
Scuole
180 m
Liceo statale Girolamo Bagatta
510 m
Liceo Bagatta
580 m
Istituto Alberghiero Caterina De Medici
1,4 Km
Istituto tecnico e Professionale Bazoli-Polo
1,7 Km
Farmacia Farmacia
Farmacia
280 m
Farmacia Capolaterra
500 m
Farmacia Comunale
1,5 Km
Ospedali Ospedali
Azienda Ospedaliera di Desenzano del Garda
1,3 Km
Ospedali
2,4 Km
Supermercati Supermercati
Dpiù
750 m
Italmark
1,1 Km
Lidl
1,3 Km
Simply
1,8 Km
Esselunga
2,1 Km
Negozi Negozi
PrimaDonna Collection
210 m
Minimarket
240 m
Wise
250 m
Champion
460 m
Yamamay
500 m
Bar Bar
Bar Combattenti
300 m
Bar del Porto
350 m
Bianca Caffè
590 m
Maratona Cafè
790 m
Olimpia
1,1 Km
Ristoranti Ristoranti
la taverna del Garda
140 m
Osteria Sapore di Vino
150 m
Spritz & Burger
170 m
Al Fattore
230 m
Ristorante con Pizzeria Colomba
300 m
Mostra tutto

Caratteristiche

Rif.:
61182464
Piano:
Terra di 3
Totale piani:
3
Posti auto:
20
Condizionamento:
Centralizzato
Ascensore:
No
Mostra tutto
Prezzo Prezzo
€ 900 / mese
Spese annue Spese annue
€ 800

Classe Energetica

Questo immobile è esente da classe energetica
Anno di costruzione:
1980
Riscaldamento:
Centralizzato
Tipo impianto:
Ad aria
Tipo alimentazione:
Altro

Ti interessa visionare l'immobile?

Fissa un appuntamento  Fissa un appuntamento

Richiedi informazioni

Clicca su Leggi per aprire l'informativa
* Questi campi sono obbligatori
Affiliato
Industriale Desenzano Srl
Viale Motta, 149 25015 Desenzano Del Garda (BS)

Il nostro staff


  • Francesca Lanzini
    Affiliata

  • Andrea Bucci
    Collaboratore

  • Francesco Bellicini
    Affiliato

  • Alessia Fontana
    Coordinatrice

  • Stefano Ghidini
    Affiliato

  • Noemi Pagliara
    Collaboratrice

  • Alberto Rigoni
    Collaboratore

  • Susanna Vincenzi
    Collaboratrice
Viale Motta, 149 25015 Desenzano Del Garda (BS)
Zona: Desenzano-Sirmione-Lonato-Padenghe-Bedizzole-Peschiera del Garda
Mostra su mappa
Orari: LUN/VEN: 8:30/12:30 - 14:00/19:00 SABATO: 8:30/12:30
Affiliato
Industriale Desenzano Srl
Viale Motta, 149 25015 Desenzano Del Garda (BS)

2026 Tecnocasa Franchising S.p.A. - P. IVA 08365160152 - Via Monte Bianco 60/A 20089 Rozzano (MI). Ogni agenzia ha un proprio titolare ed è autonoma. Privacy policy | Policy utilizzo | Cookie policy