Negozio in vendita

Desenzano Del Garda, Via Tobruch - Grezze
€ 450.000
4 locali 4 locali
430 Mq 430 Mq
3 bagni 3 bagni

Negozio in vendita

Desenzano Del Garda, Via Tobruch - Grezze

Questo immobile dispone di soluzioni frazionate

Descrizione annuncio

Proponiamo in vendita un locale commerciale, con annesso ampio magazzino, inserito in un prestigioso centro polivalente alle porte del comune di Desenzano del Garda

COSA SAPERE SULL'IMMOBILE

Ubicazione: La soluzione si sviluppa su una superfice complessiva di circa 430 mq, è collocata a piano terra all’interno del centro direzionale denominato “Silver center” ed è facilmente raggiungibile dalle principali vie di comunicazione.

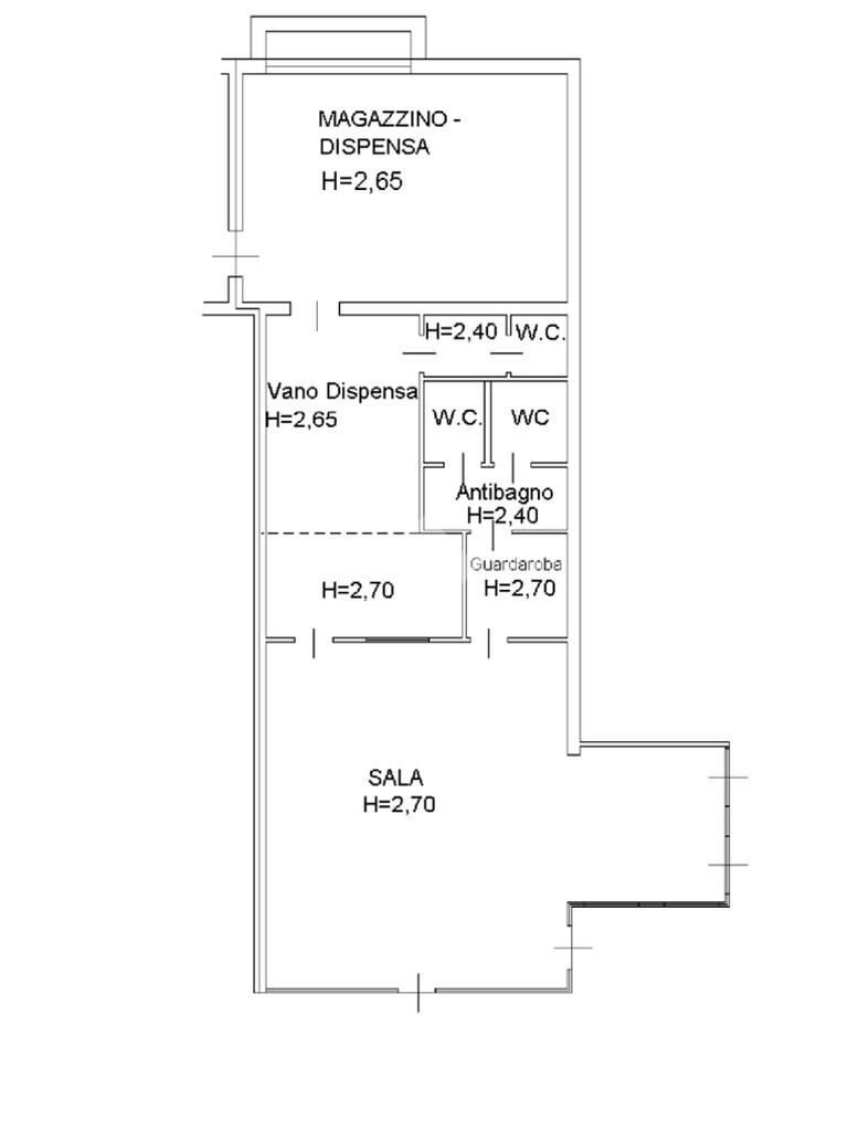
Composizione: La vendita comprende un immobile a destinazione commerciale di circa 185 mq ed un magazzino, ad esso collegato, di circa 245 mq.

Negozio: L’immobile a destinazione commerciale ha ospitato per diverso tempo un’attività di bar tavola calda, si affaccia sulla strada e dispone di ampie vetrate.

Il negozio si sviluppa su un unico livello ed è composto da tre ambienti principali e tripli servizi igienici di cui uno a norma disabili.

Magazzino: Il magazzino si sviluppa su una superficie di circa 245 mq, gode di comodo accesso carraio ed è attualmente locato come deposito attrezzature.

I due immobili sono collegati all’impianto di riscaldamento e climatizzazione centralizzato e le relative spese vengono ripartite nelle spese condominiali in base ai consumi annui.

L’edificio oltre ad essere facilmente raggiungibile, gode di ampio parcheggio gratuito a disposizione degli utenti della struttura.

GLI IMMOBILI POSSONO ESSERE VENDUTI ANCHE SEPARATAMENTE.

Maggiori informazioni in agenzia.

UBICAZIONE E CONTESTO

Desenzano del Garda è oggi una vivace cittadina di circa 29.000 abitanti collocata all'estremità sud-ovest del Lago di Garda. È il comune più popoloso del lago di Garda e il secondo della provincia di Brescia. Desenzano si trova nella parte sud-orientale della provincia di Brescia.

Mostra tutto

Nelle vicinanze

Trasporto pubblico Trasporto pubblico
Desenzano del Garda - Sirmione
Desenzano del Garda - Sirmione
750 m
Trasporto pubblico
730 m
Via Michelangelo Dugazze
Via Michelangelo Dugazze
2,6 Km
Trasporto pubblico
1,5 Km
Desenzano
1,5 Km
Ricariche auto elettriche Ricariche auto elettriche
Hotel Bonotto Desenzano
1,6 Km
Gardauno Parcheggio Desenzanino
2,0 Km
Desenzano Motori Srl | EnelX
2,7 Km
GardaUno Lonato Famila
2,8 Km
Ristorante Pizzeria Silvano - evway
2,9 Km
Scuole Scuole
Liceo Bagatta
1,2 Km
Liceo statale Girolamo Bagatta
1,3 Km
Scuole
1,4 Km
Istituto Alberghiero Caterina De Medici
1,6 Km
Istituto tecnico e Professionale Bazoli-Polo
1,8 Km
Farmacia Farmacia
Farmacia Capolaterra
1,1 Km
Farmacia
1,4 Km
Farmacia Comunale
1,9 Km
Farmacia Morandi
2,8 Km
Ospedali Ospedali
Azienda Ospedaliera di Desenzano del Garda
1,2 Km
Ospedali
2,9 Km
Supermercati Supermercati
Lidl
330 m
Esselunga
520 m
Italmark
710 m
Dpiù
1,1 Km
Simply
2,1 Km
Negozi Negozi
Sgb Style
1,4 Km
Champion
1,4 Km
Intimamente
1,4 Km
Yamamay
1,4 Km
Belle Epoque
1,4 Km
Bar Bar
Olimpia
800 m
Bianca Caffè
1,4 Km
Bar del Porto
1,4 Km
Maratona Cafè
1,5 Km
Bar Combattenti
1,5 Km
Ristoranti Ristoranti
Sushiko
390 m
Pizzeria d'asporto Il Tagliere
990 m
Trattoria da Renato
1,2 Km
Linus
1,3 Km
La Lepre
1,3 Km
Mostra tutto

Caratteristiche

Rif.:
61182555
Piano:
Terra di 3
Totale piani:
3
Box:
1
Posti auto:
99
Condizionamento:
Centralizzato
Mostra tutto
Prezzo Prezzo
€ 450.000
Rata mutuo Rata mutuo
€ 2.121 / mese
Spese annue Spese annue
€ 5.000
Proponi il tuo prezzoProponi il tuo prezzo

Classe Energetica

E
E
E
E
E
E
E
E
E
EP globale non rinnovabile:
4319.00 kW h/m² anno
EP globale rinnovabile:
2003.00 kW h/m² anno
EP invernale del fabbricato:
EP estiva del fabbricato:
Anno di costruzione:
1990
Riscaldamento:
Centralizzato
Tipo impianto:
Ad aria
Tipo alimentazione:
Altro

Ti interessa visionare l'immobile?

Fissa un appuntamento  Fissa un appuntamento

Richiedi informazioni

Clicca su Leggi per aprire l'informativa
* Questi campi sono obbligatori

Calcola il tuo mutuo

Semplice e senza impegno
Anticipo

( % )
Mutuo

( % )

pochi semplici passi

inserisci i tuoi dati
Questionario completato
Grazie per aver richiesto un appuntamento senza impegno con un nostro Consulente del Credito e Assicurativo.

Hai inserito correttamente tutti i dati necessari e a breve riceverai una e-mail con un link da convalidare per inviare i tuoi dati.
Affiliato
Industriale Desenzano Srl
Viale Motta, 149 25015 Desenzano Del Garda (BS)

Il nostro staff


  • Francesca Lanzini
    Affiliata

  • Andrea Bucci
    Collaboratore

  • Francesco Bellicini
    Affiliato

  • Alessia Fontana
    Coordinatrice

  • Stefano Ghidini
    Affiliato

  • Noemi Pagliara
    Collaboratrice

  • Alberto Rigoni
    Collaboratore

  • Susanna Vincenzi
    Collaboratrice
Viale Motta, 149 25015 Desenzano Del Garda (BS)
Zona: Desenzano-Sirmione-Lonato-Padenghe-Bedizzole-Peschiera del Garda
Mostra su mappa
Orari: LUN/VEN: 8:30/12:30 - 14:00/19:00 SABATO: 8:30/12:30
Affiliato
Industriale Desenzano Srl
Viale Motta, 149 25015 Desenzano Del Garda (BS)

2026 Tecnocasa Franchising S.p.A. - P. IVA 08365160152 - Via Monte Bianco 60/A 20089 Rozzano (MI). Ogni agenzia ha un proprio titolare ed è autonoma. Privacy policy | Policy utilizzo | Cookie policy