Ufficio in affitto

Desenzano Del Garda, Piazza Duomo - Centro Storico
€ 1.600 / mese
2 locali 2 locali
80 Mq 80 Mq
1 bagno 1 bagno

Ufficio in affitto

Desenzano Del Garda, Piazza Duomo - Centro Storico

Descrizione annuncio

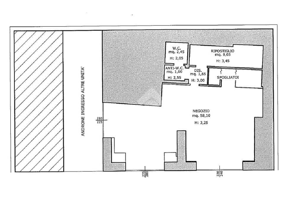
Proponiamo in locazione un ufficio di circa 80 mq in Piazza Duomo a Desenzano del Garda.

PARTICOLARITÀ E DESCRIZIONE

Ubicazione: L'ufficio è sito in Piazza Duomo, nel cuore del centro storico di Desenzano del Garda (BS).

Superficie: L’immobile ha una superficie complessiva di 80 mq interamente disposti a piano terra.

Il locale dispone anche di n. 3 vetrine affacciate direttamente sulla Piazza e all’interno della galleria.

Il locale è dotato un ampio servizio igienico con antibagno e una parte di retrobottega in cartongesso.

Impianti: L’ambiente è dotato di un impianto di riscaldamento e raffrescamento a pompa di calore di recente installazione.

Richiesta economica: La richiesta economica è pari ad euro 1600,00 mensili non soggetti ad iva.

Maggiori informazioni in agenzia.

UBICAZIONE E CONTESTO

La cittadina Gardesana di Desenzano è frequentata durante tutto l'anno da visitatori che giungono da ogni zona d'Italia e da buona parte d'Europa. L'intenso flusso pedonale consente al centro storico di essere sempre vissuto e conseguentemente garantisce un ottimo volume d'affari alle attività presenti. La zona è servita da grandi parcheggi che sono dislocati sul lungo lago e nelle immediate vicinanze del centro storico. Il lago si trova a pochi passi dal locale. Sottolineiamo che l'afflusso pedonale è molto alto ed il numero di potenziali clienti derivano sia dagli abitanti locali, ma soprattutto dal numero molto elevato di turisti italiani e stranieri provenienti dal Nord Europa. Desenzano D/G è una nota località lacustre della provincia bresciana, ubicata in posizione strategica ed equidistante dalle città di Verona e Brescia.

Mostra tutto

Nelle vicinanze

Trasporto pubblico Trasporto pubblico
Desenzano del Garda - Sirmione
Desenzano del Garda - Sirmione
970 m
Trasporto pubblico
320 m
Via Michelangelo Dugazze
Via Michelangelo Dugazze
2,1 Km
Trasporto pubblico
240 m
Desenzano
240 m
Ricariche auto elettriche Ricariche auto elettriche
Hotel Bonotto Desenzano
320 m
Gardauno Parcheggio Desenzanino
700 m
Gardauno Parcheggio Via Agello
2,5 Km
Scuole Scuole
Scuole
180 m
Liceo statale Girolamo Bagatta
280 m
Liceo Bagatta
360 m
Istituto Alberghiero Caterina De Medici
1,2 Km
Istituto tecnico e Professionale Bazoli-Polo
1,5 Km
Farmacia Farmacia
Farmacia
90 m
Farmacia Capolaterra
410 m
Farmacia Comunale
1,3 Km
Ospedali Ospedali
Azienda Ospedaliera di Desenzano del Garda
1,4 Km
Ospedali
2,2 Km
Supermercati Supermercati
Dpiù
820 m
Italmark
1,0 Km
Lidl
1,2 Km
Simply
1,5 Km
Esselunga
1,9 Km
Negozi Negozi
Wise
30 m
PrimaDonna Collection
90 m
Champion
230 m
Yamamay
270 m
Belle Epoque
340 m
Bar Bar
Bar del Porto
110 m
Bar Combattenti
120 m
Bianca Caffè
350 m
Maratona Cafè
560 m
Olimpia
920 m
Ristoranti Ristoranti
Al Fattore
60 m
Ristorante con Pizzeria Colomba
80 m
Spritz & Burger
100 m
Osteria Sapore di Vino
130 m
El Ponte
140 m
Mostra tutto

Caratteristiche

Rif.:
61114928
Piano:
Terra di 2
Totale piani:
2
Posti auto:
50
Condizionamento:
Autonomo
Ascensore:
No
Mostra tutto
Prezzo Prezzo
€ 1.600 / mese
Spese annue Spese annue
€ 0

Classe Energetica

Questo immobile è esente da classe energetica
Anno di costruzione:
1900
Riscaldamento:
Autonomo
Tipo impianto:
Ad aria
Tipo alimentazione:
Altro

Ti interessa visionare l'immobile?

Fissa un appuntamento  Fissa un appuntamento

Richiedi informazioni

Clicca su Leggi per aprire l'informativa
* Questi campi sono obbligatori
Affiliato
Industriale Desenzano Srl
Viale Motta, 149 25015 Desenzano Del Garda (BS)

Il nostro staff


  • Francesca Lanzini
    Affiliata

  • Andrea Bucci
    Collaboratore

  • Francesco Bellicini
    Affiliato

  • Alessia Fontana
    Coordinatrice

  • Stefano Ghidini
    Affiliato

  • Noemi Pagliara
    Collaboratrice

  • Alberto Rigoni
    Collaboratore

  • Susanna Vincenzi
    Collaboratrice
Viale Motta, 149 25015 Desenzano Del Garda (BS)
Zona: Desenzano-Sirmione-Lonato-Padenghe-Bedizzole-Peschiera del Garda
Mostra su mappa
Orari: LUN/VEN: 8:30/12:30 - 14:00/19:00 SABATO: 8:30/12:30
Affiliato
Industriale Desenzano Srl
Viale Motta, 149 25015 Desenzano Del Garda (BS)

2026 Tecnocasa Franchising S.p.A. - P. IVA 08365160152 - Via Monte Bianco 60/A 20089 Rozzano (MI). Ogni agenzia ha un proprio titolare ed è autonoma. Privacy policy | Policy utilizzo | Cookie policy