Ufficio in affitto

Desenzano Del Garda, Via Scavi Romani - Centro Storico
€ 1.850 / mese
Prezzo aggiornato
5 locali 5 locali
130 Mq 130 Mq
3 bagni 3 bagni

Ufficio in affitto

Desenzano Del Garda, Via Scavi Romani - Centro Storico

Descrizione annuncio

Proponiamo in affitto un immobile a destinazione direzionale con vetrine, posto a piano rialzato ed ubicato a ridosso del centro storico di Desenzano del Garda (BS).

DESCRIZIONE E PARTICOLARITÀ

Ubicazione: L’ ufficio si trova in Via Scavi Romani a Desenzano del Garda, in prossimità del centro storico ed a pochi passi dall’ autosilo con accesso da Via Gramsci.

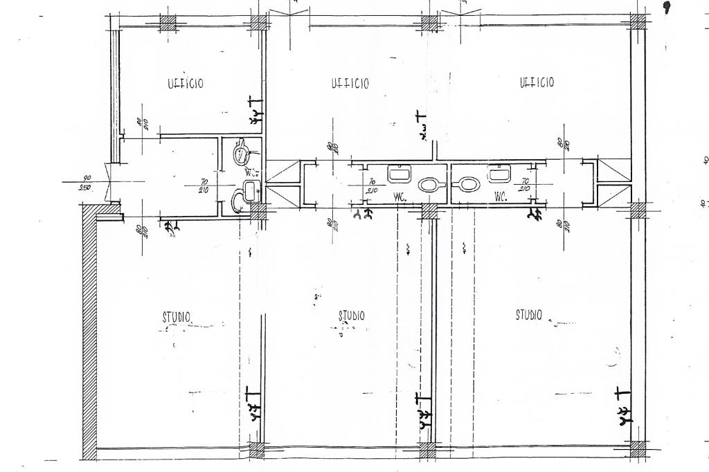
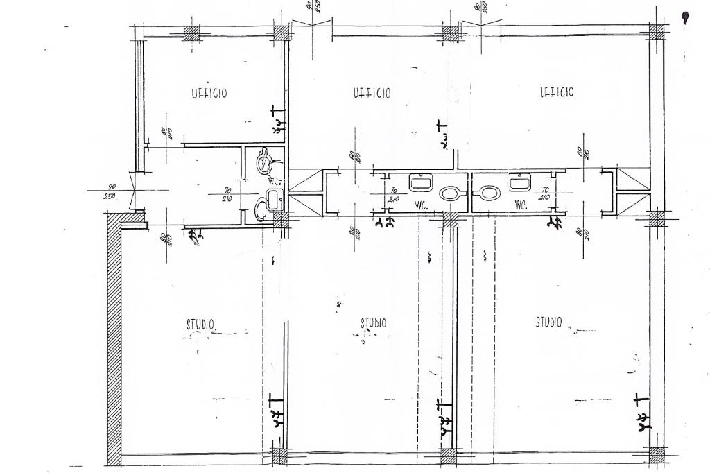
Superficie: L'immobile è posto a piano rialzato di un palazzo a destinazione prevalentemente residenziale, gode di buona visibilità ed ha una superficie complessiva di circa 130 mq.

La struttura è suddiviso in 5 locali di diverse dimensioni, dispone di 3 servizi igienici e sul retro è presente un’ampia terrazza di circa 50 mq.

Impianti: Gli ambienti sono provvisti di impianti di riscaldamento con termoconvettori a parete, collegati all’impianto condominiale e pompe di calore a muro per la climatizzazione estiva.

Considerando quanto sopra esposto, l’immobile si presta all’insediamento di attività di servizio, studi professionali, o sedi amministrative.

Le spese condominiali, compresi i costi relativi al riscaldamento centralizzato, corrispondono a circa 2.300 Euro annui.

Il canone non è soggetto ad Iva.

Maggiori informazioni in agenzia.

UBICAZIONE E CONTESTO

Desenzano D/G è tra le più note e conosciute località turistiche del Garda. L’ufficio si trova in prossimità del centro storico del paese tra Via Marconi e Piazza Garibaldi, ben servito dai mezzi pubblici. A pochi minuti dall’ uscita autostradale A4 e dalla tangenziale che collega i limitrofi paesi di Sirmione, Lonato e Padenghe.

Mostra tutto

Nelle vicinanze

Trasporto pubblico Trasporto pubblico
Desenzano del Garda - Sirmione
Desenzano del Garda - Sirmione
1,1 Km
Trasporto pubblico
470 m
Via Michelangelo Dugazze
Via Michelangelo Dugazze
2,3 Km
Trasporto pubblico
390 m
Desenzano
390 m
Ricariche auto elettriche Ricariche auto elettriche
Hotel Bonotto Desenzano
180 m
Gardauno Parcheggio Desenzanino
570 m
Gardauno Parcheggio Via Agello
2,6 Km
Splendido Bay Luxury Spa Resort
3,0 Km
Scuole Scuole
Scuole
110 m
Liceo statale Girolamo Bagatta
420 m
Liceo Bagatta
490 m
Istituto Alberghiero Caterina De Medici
1,3 Km
Istituto tecnico e Professionale Bazoli-Polo
1,7 Km
Farmacia Farmacia
Farmacia
220 m
Farmacia Capolaterra
430 m
Farmacia Comunale
1,4 Km
Ospedali Ospedali
Azienda Ospedaliera di Desenzano del Garda
1,3 Km
Ospedali
2,4 Km
Supermercati Supermercati
Dpiù
740 m
Italmark
1,0 Km
Lidl
1,2 Km
Simply
1,7 Km
Esselunga
2,0 Km
Negozi Negozi
PrimaDonna Collection
150 m
Wise
170 m
Minimarket
330 m
Champion
380 m
Yamamay
420 m
Bar Bar
Bar Combattenti
240 m
Bar del Porto
270 m
Bianca Caffè
500 m
Maratona Cafè
710 m
Olimpia
1,0 Km
Ristoranti Ristoranti
Osteria Sapore di Vino
110 m
Spritz & Burger
120 m
la taverna del Garda
140 m
Al Fattore
160 m
Ristorante con Pizzeria Colomba
230 m
Mostra tutto

Caratteristiche

Rif.:
61139069
Piano:
Terra di 3
Totale piani:
3
Posti auto:
50
Balconi:
1
Condizionamento:
Centralizzato
Mostra tutto
Prezzo Prezzo
€ 1.850 / mese
Spese annue Spese annue
€ 2.300

Classe Energetica

E
E
E
E
E
E
E
E
E
EP globale non rinnovabile:
325.30 kW h/m² anno
EP globale rinnovabile:
159.62 kW h/m² anno
EP invernale del fabbricato:
EP estiva del fabbricato:
Anno di costruzione:
1990
Riscaldamento:
Centralizzato
Tipo impianto:
Ad aria
Tipo alimentazione:
Altro

Prezzo ridotto di €1 (12%%)

Ti interessa visionare l'immobile?

Fissa un appuntamento  Fissa un appuntamento

Richiedi informazioni

Clicca su Leggi per aprire l'informativa
* Questi campi sono obbligatori
Affiliato
Industriale Desenzano Srl
Viale Motta, 149 25015 Desenzano Del Garda (BS)

Il nostro staff


  • Francesca Lanzini
    Affiliata

  • Andrea Bucci
    Collaboratore

  • Francesco Bellicini
    Affiliato

  • Alessia Fontana
    Coordinatrice

  • Stefano Ghidini
    Affiliato

  • Noemi Pagliara
    Collaboratrice

  • Alberto Rigoni
    Collaboratore

  • Susanna Vincenzi
    Collaboratrice
Viale Motta, 149 25015 Desenzano Del Garda (BS)
Zona: Desenzano-Sirmione-Lonato-Padenghe-Bedizzole-Peschiera del Garda
Mostra su mappa
Orari: LUN/VEN: 8:30/12:30 - 14:00/19:00 SABATO: 8:30/12:30
Affiliato
Industriale Desenzano Srl
Viale Motta, 149 25015 Desenzano Del Garda (BS)

2026 Tecnocasa Franchising S.p.A. - P. IVA 08365160152 - Via Monte Bianco 60/A 20089 Rozzano (MI). Ogni agenzia ha un proprio titolare ed è autonoma. Privacy policy | Policy utilizzo | Cookie policy