Ufficio in vendita

Desenzano Del Garda, Via Tobruch - Grezze
€ 340.000
3 locali 3 locali
185 Mq 185 Mq
3 bagni 3 bagni

Ufficio in vendita

Desenzano Del Garda, Via Tobruch - Grezze

Descrizione annuncio

Proponiamo in vendita un ufficio, inserito in un prestigioso centro polivalente alle porte del comune di Desenzano del Garda

DESRIZIONE E PARTICOLARITÀ

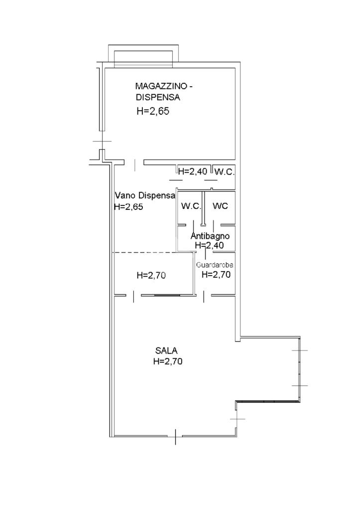
Ubicazione: La soluzione si sviluppa su una superfice complessiva di circa 185 mq, è collocata a piano terra all’interno del centro direzionale denominato “Silver center” ed è facilmente raggiungibile dalle principali vie di comunicazione.

Superficie: L'ufficio ha ospitato per diverso tempo un’attività di bar tavola calda, si affaccia sulla strada e dispone di ampie vetrate

L’ambiente si sviluppa su un unico livello ed è composto da tre ambienti principali e tripli servizi igienici di cui uno a norma disabili.

IMPIANTI: L’immobile dispone di impianto di riscaldamento e climatizzazione centralizzato e le relative spese vengono ripartite nelle spese condominiali in base ai consumi annui.

L’edificio oltre ad essere facilmente raggiungibile, gode di ampio parcheggio gratuito a disposizione degli utenti della struttura.

Oltre all'ufficio può essere disponibile in aggiunta un magazzino adiacente di circa 245 mq.

Maggiori informazioni in agenzia.

UBICAZIONE E CONTESTO

Desenzano del Garda è oggi una vivace cittadina di circa 29.000 abitanti collocata all'estremità sud-ovest del Lago di Garda. È il comune più popoloso del lago di Garda e il secondo della provincia di Brescia. Desenzano si trova nella parte sud-orientale della provincia di Brescia. La parte settentrionale si affaccia sul basso lago di Garda, mentre il resto del territorio si estende verso sud sulle colline moreniche. In questa zona dell'entroterra il territorio comunale confina con il Veneto (provincia di Verona). Dista circa 30 km da Brescia e 40 da Verona.

Mostra tutto

Nelle vicinanze

Trasporto pubblico Trasporto pubblico
Desenzano del Garda - Sirmione
Desenzano del Garda - Sirmione
750 m
Trasporto pubblico
710 m
Via Michelangelo Dugazze
Via Michelangelo Dugazze
2,6 Km
Trasporto pubblico
1,5 Km
Desenzano
1,5 Km
Ricariche auto elettriche Ricariche auto elettriche
Hotel Bonotto Desenzano
1,6 Km
Gardauno Parcheggio Desenzanino
2,0 Km
Desenzano Motori Srl | EnelX
2,7 Km
GardaUno Lonato Famila
2,8 Km
Ristorante Pizzeria Silvano - evway
2,9 Km
Scuole Scuole
Liceo Bagatta
1,2 Km
Liceo statale Girolamo Bagatta
1,3 Km
Scuole
1,4 Km
Istituto Alberghiero Caterina De Medici
1,6 Km
Istituto tecnico e Professionale Bazoli-Polo
1,8 Km
Farmacia Farmacia
Farmacia Capolaterra
1,0 Km
Farmacia
1,4 Km
Farmacia Comunale
1,9 Km
Farmacia Morandi
2,8 Km
Ospedali Ospedali
Azienda Ospedaliera di Desenzano del Garda
1,2 Km
Ospedali
2,9 Km
Supermercati Supermercati
Lidl
310 m
Esselunga
540 m
Italmark
680 m
Dpiù
1,1 Km
Simply
2,1 Km
Negozi Negozi
Sgb Style
1,4 Km
Champion
1,4 Km
Intimamente
1,4 Km
Yamamay
1,4 Km
Belle Epoque
1,4 Km
Bar Bar
Olimpia
790 m
Bianca Caffè
1,4 Km
Bar del Porto
1,4 Km
Maratona Cafè
1,5 Km
Bar Combattenti
1,5 Km
Ristoranti Ristoranti
Sushiko
360 m
Pizzeria d'asporto Il Tagliere
980 m
Trattoria da Renato
1,1 Km
Linus
1,3 Km
La Lepre
1,3 Km
Mostra tutto

Caratteristiche

Rif.:
61182947
Piano:
Terra di 3
Totale piani:
3
Posti auto:
20
Condizionamento:
Centralizzato
Ascensore:
No
Mostra tutto
Prezzo Prezzo
€ 340.000
Rata mutuo Rata mutuo
€ 1.603 / mese
Spese annue Spese annue
€ 5.000
Proponi il tuo prezzoProponi il tuo prezzo

Classe Energetica

E
E
E
E
E
E
E
E
E
EP globale non rinnovabile:
4319.00 kW h/m² anno
EP globale rinnovabile:
2003.00 kW h/m² anno
EP invernale del fabbricato:
EP estiva del fabbricato:
Anno di costruzione:
1990
Riscaldamento:
Centralizzato
Tipo impianto:
Ad aria
Tipo alimentazione:
Altro

Ti interessa visionare l'immobile?

Fissa un appuntamento  Fissa un appuntamento

Richiedi informazioni

Clicca su Leggi per aprire l'informativa
* Questi campi sono obbligatori

Calcola il tuo mutuo

Semplice e senza impegno
Anticipo

( % )
Mutuo

( % )

pochi semplici passi

inserisci i tuoi dati
Questionario completato
Grazie per aver richiesto un appuntamento senza impegno con un nostro Consulente del Credito e Assicurativo.

Hai inserito correttamente tutti i dati necessari e a breve riceverai una e-mail con un link da convalidare per inviare i tuoi dati.
Affiliato
Industriale Desenzano Srl
Viale Motta, 149 25015 Desenzano Del Garda (BS)

Il nostro staff


  • Francesca Lanzini
    Affiliata

  • Andrea Bucci
    Collaboratore

  • Francesco Bellicini
    Affiliato

  • Alessia Fontana
    Coordinatrice

  • Stefano Ghidini
    Affiliato

  • Noemi Pagliara
    Collaboratrice

  • Alberto Rigoni
    Collaboratore

  • Susanna Vincenzi
    Collaboratrice
Viale Motta, 149 25015 Desenzano Del Garda (BS)
Zona: Desenzano-Sirmione-Lonato-Padenghe-Bedizzole-Peschiera del Garda
Mostra su mappa
Orari: LUN/VEN: 8:30/12:30 - 14:00/19:00 SABATO: 8:30/12:30
Affiliato
Industriale Desenzano Srl
Viale Motta, 149 25015 Desenzano Del Garda (BS)

2026 Tecnocasa Franchising S.p.A. - P. IVA 08365160152 - Via Monte Bianco 60/A 20089 Rozzano (MI). Ogni agenzia ha un proprio titolare ed è autonoma. Privacy policy | Policy utilizzo | Cookie policy