Negozio in affitto

Lonato Del Garda, Via della Repubblica - Lonato
€ 750 / mese
2 locali 2 locali
60 Mq 60 Mq
1 bagno 1 bagno

Negozio in affitto

Lonato Del Garda, Via della Repubblica - Lonato

Descrizione annuncio

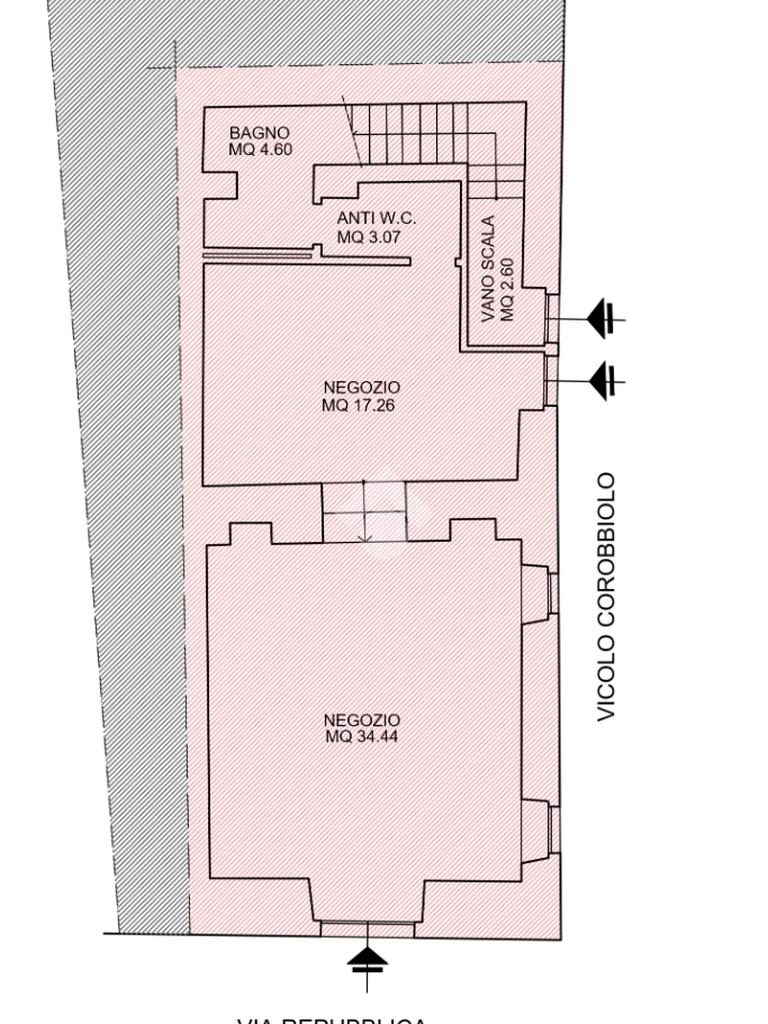
Negozio di 60 mq diviso in due ambienti con predisposizione canna fumaria, in Via Repubblica a Lonato del Garda.

PARTICOLARITA' E DESCRIZIONE

L'immobile che proponiamo in locazione è un ufficio posto al piano terra nel centro storico di Lonato del Garda.

Ubicazione: L’immobile si trova in Via Repubblica a Lonato del Garda (BS), vicino alle poste e a pochi passi dalla piazza principale con tanto di parcheggio nelle vicinanze.

Composizione: La soluzione ha una metratura complessiva di 60 mq, diviso in due ambienti. Il primo ambiente è di circa 35 mq, mentre il secondo ambiente, posizionato sul retro è di circa 25 mq.

Sul retro dell’immobile è anche presente un bagno con antibagno.

Locale dotato di doppio accesso sui due lati della strada essendo l’immobile ad angolo.

Impianti: L’immobile è riscaldato tramite termoconvettori.

L'immobile dispone di predisposizione di canna fumaria.

Canone: il canone di locazione ammonta ad Euro 750,00 soggetto ad IVA, non sono presenti spese condominiali.

Per maggiori informazioni rivolgersi all’agenzia.

UBICAZIONE E CONTESTO

Lonato del Garda è un comune italiano di circa 16.500 abitanti della provincia di Brescia, in Lombardia, sul basso lago di Garda. Per un breve tratto di circa 350 metri esso si affaccia sul lago di Garda ma il nucleo dell'abitato è raccolto attorno alla rocca e alla torre civica. L'economia di Lonato del Garda si basa sull'agricoltura, l'industria ferriera, l'artigianato e il terziario. Lonato del Garda è attraversato dall'autostrada A4 Milano-Venezia. Nel territorio comunale non sono presenti caselli, dato che il più vicino, quello di Desenzano del Garda, è situato nel territorio del comune omonimo nei pressi del confine con Lonato. La Padana Superiore attraversa il territorio in duplice forma. Come superstrada, in qualità di strada provinciale BS 11, passa a nord del centro abitato principale. Il percorso originale, divenuto strada comunale, percorre invece il centro storico.

Mostra tutto

Nelle vicinanze

Trasporto pubblico Trasporto pubblico
Lonato
Lonato
540 m
Trasporto pubblico
330 m
Ricariche auto elettriche Ricariche auto elettriche
GardaUno Lonato Famila
540 m
Ristorante Pizzeria Silvano - evway
830 m
Scuole Scuole
Istituto di Istruzione Superiore Luigi Cerebotani
240 m
Scuola Secondaria di I Grado Camillo Tarello
320 m
Farmacia Farmacia
Farmacia
250 m
Farmacia Morandi
590 m
Supermercati Supermercati
Famila
670 m
Bar Bar
Bar
1,1 Km
Art Club
2,8 Km
Ristoranti Ristoranti
Ristoranti
240 m
Pizzeria
830 m
Agriturismo Cascina Graziosa
2,3 Km
La Cavallina
2,5 Km
Locanda Bettola
2,6 Km
Mostra tutto

Caratteristiche

Rif.:
61158174
Piano:
Terra di 2
Totale piani:
2
Posti auto:
50
Condizionamento:
Autonomo
Ascensore:
No
Mostra tutto
Prezzo Prezzo
€ 750 / mese
Spese annue Spese annue
€ 0

Classe Energetica

Questo immobile è esente da classe energetica
Anno di costruzione:
1980
Riscaldamento:
Autonomo
Tipo impianto:
Ad aria
Tipo alimentazione:
Altro

Ti interessa visionare l'immobile?

Fissa un appuntamento  Fissa un appuntamento

Richiedi informazioni

Clicca su Leggi per aprire l'informativa
* Questi campi sono obbligatori
Affiliato
Industriale Desenzano Srl
Viale Motta, 149 25015 Desenzano Del Garda (BS)

Il nostro staff


  • Francesca Lanzini
    Affiliata

  • Andrea Bucci
    Collaboratore

  • Francesco Bellicini
    Affiliato

  • Alessia Fontana
    Coordinatrice

  • Stefano Ghidini
    Affiliato

  • Noemi Pagliara
    Collaboratrice

  • Alberto Rigoni
    Collaboratore

  • Susanna Vincenzi
    Collaboratrice
Viale Motta, 149 25015 Desenzano Del Garda (BS)
Zona: Desenzano-Sirmione-Lonato-Padenghe-Bedizzole-Peschiera del Garda
Mostra su mappa
Orari: LUN/VEN: 8:30/12:30 - 14:00/19:00 SABATO: 8:30/12:30
Affiliato
Industriale Desenzano Srl
Viale Motta, 149 25015 Desenzano Del Garda (BS)

2026 Tecnocasa Franchising S.p.A. - P. IVA 08365160152 - Via Monte Bianco 60/A 20089 Rozzano (MI). Ogni agenzia ha un proprio titolare ed è autonoma. Privacy policy | Policy utilizzo | Cookie policy