Negozio in affitto

Lonato Del Garda, Via Monico - Lonato
€ 15.250 / mese
1 locale 1 locale
1425 Mq 1425 Mq
1 bagno 1 bagno

Negozio in affitto

Lonato Del Garda, Via Monico - Lonato

Descrizione annuncio

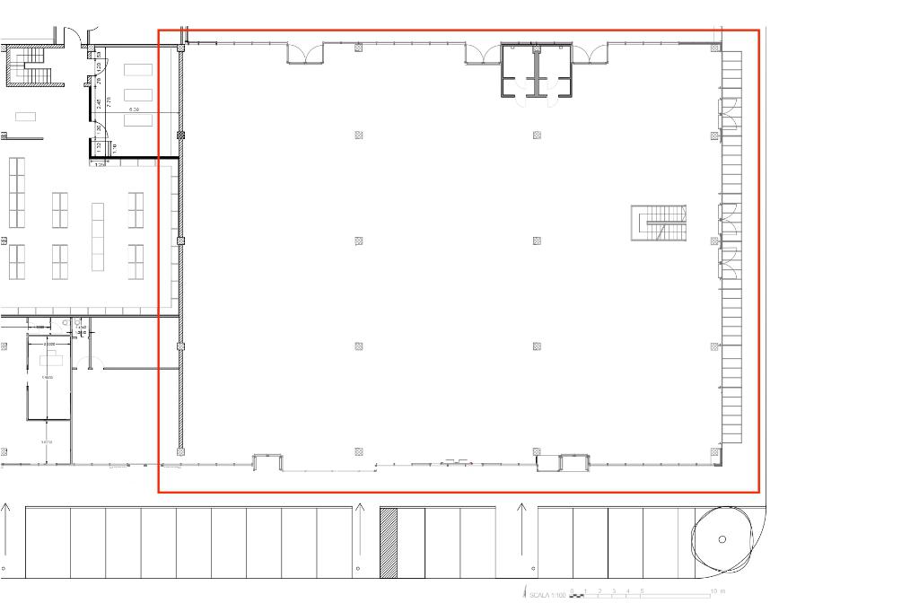
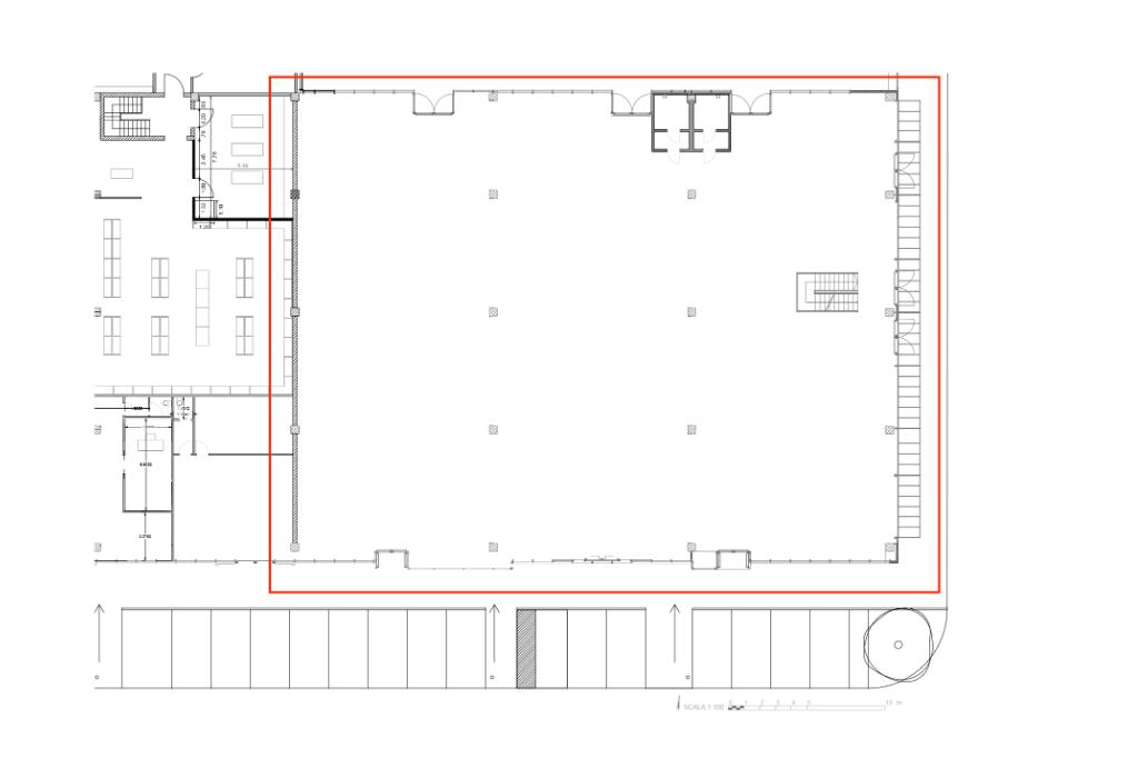
Proponiamo in locazione un locale commerciale di 1.425 mq posto su una delle principali vie di accesso a Desenzano del Garda.

PARTICOLARITÀ E DESCRIZIONE

Ubicazione: L'immobile si trova nel comune di Lonato del Garda, è affacciato su una delle principali vie di accesso al paese e dispone di ampio parcheggio al servizio degli utenti.

Superficie: L'immobile dispone di una superficie complessiva di 1.425 mq, disposti su due livelli:

- 1.150 mq interamente disposti a piano terra, aventi n. 5 ingressi pedonali e grandi vetrate che garantiscono buona visibilità;

- 300 mq disposti al piano interrato, accessibili direttamente dal piano terra tramite scala e dotati di accesso carraio.

La metratura situata al piano interrato può essere ridotta a 150 mq.

Impianti: Il locale è dotato di impianti di riscaldamento e raffrescamento ad aria, in caso di frazionamento gli impianti verranno resi indipendenti.

Prezzo: l’importo richiesto per la locazione, con i locali messi a nuovo ammontano ad euro 15.250,00 oltre IVA, oltre a delle spese condominiali in copertura della tenuta del complesso.

Sono presenti altre pezzature, le quali partono da 375 mq sino ad arrivare a 1.425 mq.

Maggiori informazioni in agenzia.

UBICAZIONE E CONTESTO

Lonato del Garda è un comune italiano di circa 16.500 abitanti della provincia di Brescia, in Lombardia, sul basso lago di Garda. Per un breve tratto di circa 350 metri esso si affaccia sul lago di Garda ma il nucleo dell'abitato è raccolto attorno alla rocca e alla torre civica. Lonato del Garda è attraversato dall'autostrada A4 Milano-Venezia. Nel territorio comunale non sono presenti caselli, dato che il più vicino, quello di Desenzano del Garda, è situato nel territorio del comune omonimo nei pressi del confine con Lonato.

Mostra tutto

Nelle vicinanze

Trasporto pubblico Trasporto pubblico
Lonato
Lonato
800 m
Trasporto pubblico
660 m
Ricariche auto elettriche Ricariche auto elettriche
GardaUno Lonato Famila
340 m
Ristorante Pizzeria Silvano - evway
720 m
Scuole Scuole
Istituto di Istruzione Superiore Luigi Cerebotani
1,0 Km
Scuola Secondaria di I Grado Camillo Tarello
1,1 Km
Farmacia Farmacia
Farmacia Morandi
300 m
Farmacia
820 m
Ospedali Ospedali
Azienda Ospedaliera di Desenzano del Garda
2,3 Km
Supermercati Supermercati
Famila
270 m
Esselunga
2,4 Km
Lidl
2,5 Km
Italmark
2,6 Km
Dpiù
2,8 Km
Bar Bar
Bar
1,8 Km
Art Club
2,1 Km
Ristoranti Ristoranti
Pizzeria
700 m
Ristoranti
810 m
Agriturismo Cascina Graziosa
1,7 Km
La Cavallina
2,2 Km
Sushiko
2,6 Km
Mostra tutto

Caratteristiche

Rif.:
61187708
Piano:
Terra di 1
Totale piani:
1
Posti auto:
50
Condizionamento:
Autonomo
Ascensore:
No
Mostra tutto
Prezzo Prezzo
€ 15.250 / mese
Spese annue Spese annue
€ 0

Classe Energetica

Questo immobile è esente da classe energetica
Anno di costruzione:
1990
Riscaldamento:
Autonomo
Tipo impianto:
Ad aria
Tipo alimentazione:
Altro

Ti interessa visionare l'immobile?

Fissa un appuntamento  Fissa un appuntamento

Richiedi informazioni

Clicca su Leggi per aprire l'informativa
* Questi campi sono obbligatori
Affiliato
Industriale Desenzano Srl
Viale Motta, 149 25015 Desenzano Del Garda (BS)

Il nostro staff


  • Francesca Lanzini
    Affiliata

  • Andrea Bucci
    Collaboratore

  • Francesco Bellicini
    Affiliato

  • Alessia Fontana
    Coordinatrice

  • Stefano Ghidini
    Affiliato

  • Noemi Pagliara
    Collaboratrice

  • Alberto Rigoni
    Collaboratore

  • Susanna Vincenzi
    Collaboratrice
Viale Motta, 149 25015 Desenzano Del Garda (BS)
Zona: Desenzano-Sirmione-Lonato-Padenghe-Bedizzole-Peschiera del Garda
Mostra su mappa
Orari: LUN/VEN: 8:30/12:30 - 14:00/19:00 SABATO: 8:30/12:30
Affiliato
Industriale Desenzano Srl
Viale Motta, 149 25015 Desenzano Del Garda (BS)

2026 Tecnocasa Franchising S.p.A. - P. IVA 08365160152 - Via Monte Bianco 60/A 20089 Rozzano (MI). Ogni agenzia ha un proprio titolare ed è autonoma. Privacy policy | Policy utilizzo | Cookie policy