Laboratorio in vendita

Peschiera Del Garda, Via XXV Aprile
€ 550.000
3 locali 3 locali
870 Mq 870 Mq
2 bagni 2 bagni

Laboratorio in vendita

Peschiera Del Garda, Via XXV Aprile

Descrizione annuncio

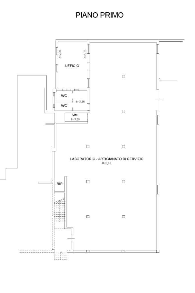
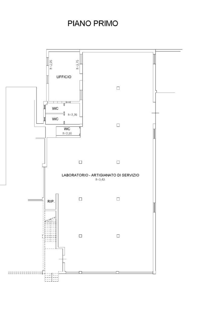
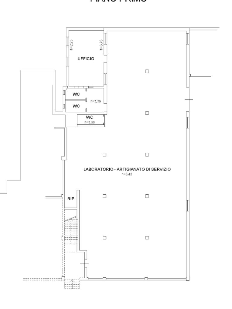
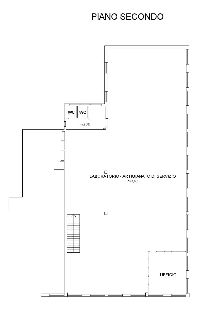
Proponiamo in vendita un laboratorio a destinazione artigianale di circa 870 mq su due livelli a Castelnuovo del Garda (VR).

PARTICOLARITÀ E DESCRIZIONE

Ubicazione: L’immobile è sito in Via XXV Aprile a Castelnuovo del Garda (VR) a pochi km dal casello autostradale di Peschiera del Garda e dalla tangenziale sr11.

Il laboratorio ha affaccio su strada principale e si trova in un complesso composto da ulteriori unità commerciali e artigianali.

Superficie: Il laboratorio ha una superficie complessiva di 832 mq così suddivisi:

- 440 mq di laboratorio artigianale al piano terra, con altezza interna di 2,95 mt sotto trave e 3,30 mt al colmo, dotato di servizi igienici, blocco ufficio e doppio accesso (pedonale e carraio);

- 382 mq di laboratorio artigianale al piano primo con altezza interna di 2,95 mt sotto trave e 3,30 mt al colmo, accessibile mediante scala interna e dotato di ulteriore servizio igienico e ufficio.

Impianti: Il blocco ufficio è dotato di impianto di riscaldamento e raffrescamento mediante pompe di calore. Il riscaldamento nei restanti ambienti è invece garantito mediante Robur.

Accessori e area esterna: L’acceso al laboratorio è comune all’unità adiacente.

A completamento della proprietà sono presenti 50 mq adibiti a garage per il posteggio delle auto e un’area di circa 1.100 mq per la movimentazione dei mezzi o in alternativa suscettibile di edificabilità a destinazione residenziale.

Prezzo d’acquisto: La richiesta economica è pari ad euro 550.000 non soggetti ad iva.

Maggiori informazioni in agenzia.

UBICAZIONE E CONTESTO

Peschiera del Garda è un comune italiano di 11 033 abitanti della provincia di Verona in Veneto. È il comune più occidentale della regione e il territorio comunale confina con le province di Brescia e Mantova. Peschiera registra ogni anno circa 2,4 milioni di presenze ufficiali, cifre che la collocano al ventunesimo posto assoluto in Italia fra le destinazioni turistiche, e al secondo dopo Lazise come meta lacustre italiana.

Mostra tutto

Nelle vicinanze

Trasporto pubblico Trasporto pubblico
stazione di Peschiera del Garda
stazione di Peschiera del Garda
820 m
Monorotaia
Monorotaia
2,4 Km
Peschiera - Porto / Piazza Betteloni
Peschiera - Porto / Piazza Betteloni
80 m
Peschiera - Albergo Milano
Peschiera - Albergo Milano
560 m
Peschiera del Garda
190 m
Ricariche auto elettriche Ricariche auto elettriche
Lidl Peschiera del Garda
1,0 Km
Gardaland Hotel
2,7 Km
Lidl Peschiera del Garda BIS
2,7 Km
Scuole Scuole
scuola secondaria statale Felice Chiarle
580 m
Scuola secondaria Felice Chiarle
590 m
Scuola Elementare
2,2 Km
Scuole
2,8 Km
scuola primaria Ponti sul Mincio
2,9 Km
Farmacia Farmacia
Farmacia Dr. Giubertoni
470 m
Dottor Giubertoni
470 m
Farmacia Dr. Ruzza
680 m
Farmacia Dottor Piazza
970 m
Farmacia
2,4 Km
Ospedali Ospedali
Casa di Cura Dottor Pederzoli
1,3 Km
Presidio Medico
2,8 Km
Supermercati Supermercati
Sigra Market
300 m
Lidl
970 m
Conad
1,0 Km
Penny
1,1 Km
Supermarket Bella Italia
1,3 Km
Negozi Negozi
Ciak
50 m
5th Avenue
60 m
Route 101
70 m
Tabacchi
70 m
Via Roma
70 m
Bar Bar
Snack Bar Voltoni
100 m
bar sole
700 m
Bar Stazione
830 m
Bar
990 m
extro'
1,5 Km
Ristoranti Ristoranti
Cristina e Franco
50 m
l'Osteria
50 m
Il Gabbiano
90 m
'In Chiostro', Ristorante & Lounge Bar
120 m
Il Cantinone
130 m
Mostra tutto

Caratteristiche

Rif.:
61117390
Piano:
Su più livelli di 2
Totale piani:
2
Box:
4
Posti auto:
99
Condizionamento:
Autonomo
Mostra tutto
Prezzo Prezzo
€ 550.000
Rata mutuo Rata mutuo
€ 2.568 / mese
Spese annue Spese annue
€ 0
Proponi il tuo prezzoProponi il tuo prezzo

Classe Energetica

Questo immobile è esente da classe energetica
Anno di costruzione:
1990
Riscaldamento:
Autonomo
Tipo impianto:
Ad aria
Tipo alimentazione:
Altro

Ti interessa visionare l'immobile?

Fissa un appuntamento  Fissa un appuntamento

Richiedi informazioni

Clicca su Leggi per aprire l'informativa
* Questi campi sono obbligatori

Calcola il tuo mutuo

Semplice e senza impegno
Anticipo

( % )
Mutuo

( % )

pochi semplici passi

inserisci i tuoi dati
Questionario completato
Grazie per aver richiesto un appuntamento senza impegno con un nostro Consulente del Credito e Assicurativo.

Hai inserito correttamente tutti i dati necessari e a breve riceverai una e-mail con un link da convalidare per inviare i tuoi dati.
Affiliato
Industriale Desenzano Srl
Viale Motta, 149 25015 Desenzano Del Garda (BS)

Il nostro staff


  • Francesca Lanzini
    Affiliata

  • Andrea Bucci
    Collaboratore

  • Francesco Bellicini
    Affiliato

  • Alessia Fontana
    Coordinatrice

  • Stefano Ghidini
    Affiliato

  • Noemi Pagliara
    Collaboratrice

  • Alberto Rigoni
    Collaboratore

  • Susanna Vincenzi
    Collaboratrice
Viale Motta, 149 25015 Desenzano Del Garda (BS)
Zona: Desenzano-Sirmione-Lonato-Padenghe-Bedizzole-Peschiera del Garda
Mostra su mappa
Orari: LUN/VEN: 8:30/12:30 - 14:00/19:00 SABATO: 8:30/12:30
Affiliato
Industriale Desenzano Srl
Viale Motta, 149 25015 Desenzano Del Garda (BS)

2026 Tecnocasa Franchising S.p.A. - P. IVA 08365160152 - Via Monte Bianco 60/A 20089 Rozzano (MI). Ogni agenzia ha un proprio titolare ed è autonoma. Privacy policy | Policy utilizzo | Cookie policy