Magazzino in affitto

Peschiera Del Garda, Via Marco Biagi
€ 3.300 / mese
2 locali 2 locali
945 Mq 945 Mq
1 bagno 1 bagno

Magazzino in affitto

Peschiera Del Garda, Via Marco Biagi

Descrizione annuncio

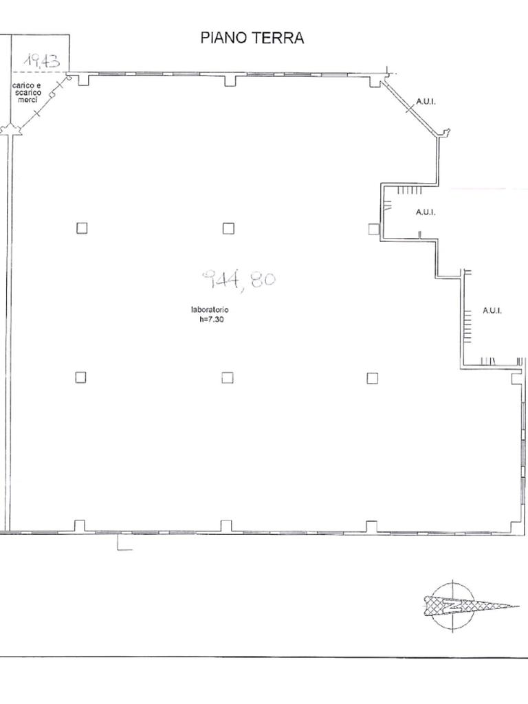
Proponiamo in locazione un magazzino al piano terra rialzato di circa 945 mq ubicato in zona artigianale a Peschiera del Garda (VR) con comodo accesso da tangenziale e autostrada.

DESCRIZIONE E PARTICOLARITA'

Ubicazione: L’immobile è sito nella principale area artigianale di Peschiera del Garda (VR) con affaccio su Via Marco Biagi, in strette vicinanze della tangenziale (strada regionale 11) e dell’autostrada (A4).

Superficie: L’immobile si sviluppa su una superficie complessiva di 945 mq disposti al piano terra rialzato di una struttura artigianale e direzionale.

Caratteristiche dell’immobile: Il magazzino ha un’altezza di 8,5 mt ed è dotato di montacarichi, doppio area dedicata al carico scarico (di cui una ad uso comune ed una ad uso esclusivo) e due portoni di accesso con le seguenti le seguenti dimensioni 3.3 x 3.36.

Impianti e servizi: Il magazzino presenta un impianto elettrico con prese 220 volt.

L’immobile può essere utilizzato ad uso deposito o in alternativa prestarsi all’inserimento di attività artigianali/produttive.

Il canone è soggetto ad Iva.

Il capannone è attualmente occupato e sono richiesti 6 mesi di preavviso per la liberazione

Maggiori informazioni in agenzia.

UBICAZIONE E CONTESTO

Peschiera del Garda è un comune italiano di 11 033 abitanti della provincia di Verona in Veneto. È il comune più occidentale della regione e il territorio comunale confina con le province di Brescia e Mantova. Peschiera registra ogni anno circa 2,4 milioni di presenze ufficiali, cifre che la collocano al ventunesimo posto assoluto in Italia fra le destinazioni turistiche, e al secondo dopo Lazise come meta lacustre italiana.

Mostra tutto

Nelle vicinanze

Trasporto pubblico Trasporto pubblico
stazione di Peschiera del Garda
stazione di Peschiera del Garda
1,1 Km
Trasporto pubblico
340 m
Dolci
Dolci
950 m
Peschiera del Garda
1,2 Km
Ricariche auto elettriche Ricariche auto elettriche
Lidl Peschiera del Garda
1,2 Km
Gardaland Hotel
2,8 Km
Scuole Scuole
scuola secondaria statale Felice Chiarle
1,3 Km
Scuola secondaria Felice Chiarle
1,3 Km
Scuole
2,1 Km
scuola primaria Ponti sul Mincio
2,1 Km
Scuola Elementare
2,9 Km
Farmacia Farmacia
Farmacia Dr. Giubertoni
1,3 Km
Dottor Giubertoni
1,3 Km
Farmacia Dr. Ruzza
1,3 Km
Farmacia Dottor Piazza
1,4 Km
Cappellari Dr Elvira
1,8 Km
Ospedali Ospedali
Casa di Cura Dottor Pederzoli
1,8 Km
Supermercati Supermercati
Aldi
1,1 Km
Conad
1,1 Km
Sigra Market
1,1 Km
Lidl
1,2 Km
Eurospar
1,3 Km
Negozi Negozi
Outlet
880 m
Salions
880 m
Le Spose di Graziella
880 m
Ame'e glamour milano
880 m
Equipe Garda Sport
890 m
Bar Bar
Snack Bar Voltoni
990 m
Bar Stazione
1,1 Km
bar sole
1,2 Km
extro'
1,3 Km
Bar
1,4 Km
Ristoranti Ristoranti
Pizzeria Aurora
510 m
Dolci Colli - Bike & Family Hotel
780 m
Osteria Rivelin
900 m
'In Chiostro', Ristorante & Lounge Bar
900 m
Osteria Goto
900 m
Mostra tutto

Caratteristiche

Rif.:
61191498
Piano:
Terra di 2
Totale piani:
2
Box:
1
Posti auto:
99
Balconi:
1
Mostra tutto
Prezzo Prezzo
€ 3.300 / mese
Spese annue Spese annue
€ 0

Classe Energetica

Questo immobile è esente da classe energetica
Anno di costruzione:
2000
Riscaldamento:
Autonomo
Tipo impianto:
Ad aria
Tipo alimentazione:
Altro

Ti interessa visionare l'immobile?

Fissa un appuntamento  Fissa un appuntamento

Richiedi informazioni

Clicca su Leggi per aprire l'informativa
* Questi campi sono obbligatori
Affiliato
Industriale Desenzano Srl
Viale Motta, 149 25015 Desenzano Del Garda (BS)

Il nostro staff


  • Francesca Lanzini
    Affiliata

  • Andrea Bucci
    Collaboratore

  • Francesco Bellicini
    Affiliato

  • Alessia Fontana
    Coordinatrice

  • Stefano Ghidini
    Affiliato

  • Noemi Pagliara
    Collaboratrice

  • Alberto Rigoni
    Collaboratore

  • Susanna Vincenzi
    Collaboratrice
Viale Motta, 149 25015 Desenzano Del Garda (BS)
Zona: Desenzano-Sirmione-Lonato-Padenghe-Bedizzole-Peschiera del Garda
Mostra su mappa
Orari: LUN/VEN: 8:30/12:30 - 14:00/19:00 SABATO: 8:30/12:30
Affiliato
Industriale Desenzano Srl
Viale Motta, 149 25015 Desenzano Del Garda (BS)

2026 Tecnocasa Franchising S.p.A. - P. IVA 08365160152 - Via Monte Bianco 60/A 20089 Rozzano (MI). Ogni agenzia ha un proprio titolare ed è autonoma. Privacy policy | Policy utilizzo | Cookie policy