Negozio in vendita

Peschiera Del Garda, Via Bergamini
€ 450.000
2 locali 2 locali
300 Mq 300 Mq
1 bagno 1 bagno

Negozio in vendita

Peschiera Del Garda, Via Bergamini

Descrizione annuncio

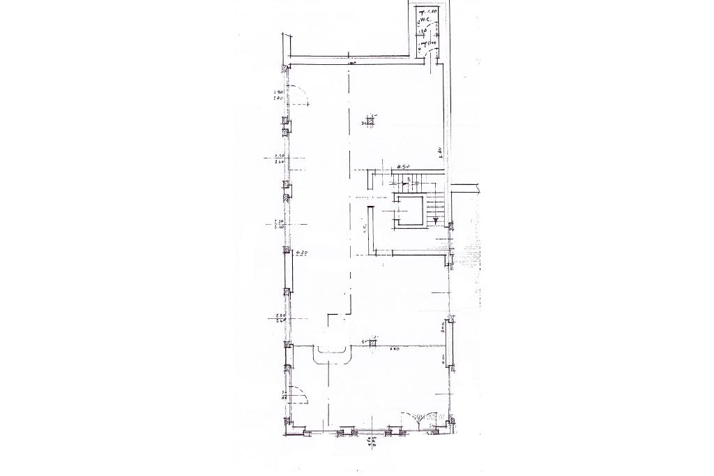
Proponiamo in vendita un negozio commerciale di 150mq con magazzino di ulteriori150mq sito nel centro storico di Peschiera del Garda.

DESCRIZIONE E PARTICOLARITÀ

Ubicazione: L'immobile è sito in una posizione angolare strategica a pochi passi da Piazza Ferdinando di Savoia più precisamente in Via Bergamini.

Superficie: la struttura è disposta su due livelli con una superficie totale di circa 300 mq così divisi:

- piano terra openspace di circa 150 mq commerciali con servizio igienico, in una posizione angolare libero su tre lati e con ampie vetrine fronte strada.

- piano interrato di 150 mq ad uso magazzino accessibile tramite scala.

Impianti: il riscaldamento e il raffrescamento viene garantito tramite split a muro e sono presenti dei radiatori da ripristinare.

Prezzo: l'importo richiesto è pari ad euro 450.000,00, soggetti ad IVA, non sono presenti spese condominiali.

Maggiori informazioni in agenzia.

UBICAZIONE E CONTESTO

Peschiera del Garda è un comune italiano di 11 033 abitanti della provincia di Verona in Veneto. È il comune più occidentale della regione e il territorio comunale confina con le province di Brescia e Mantova. Peschiera registra ogni anno circa 2,4 milioni di presenze ufficiali, cifre che la collocano al ventunesimo posto assoluto in Italia fra le destinazioni turistiche, e al secondo dopo Lazise come meta lacustre italiana.

Mostra tutto

Nelle vicinanze

Trasporto pubblico Trasporto pubblico
stazione di Peschiera del Garda
stazione di Peschiera del Garda
640 m
Monorotaia
Monorotaia
2,3 Km
Peschiera - Porto / Piazza Betteloni
Peschiera - Porto / Piazza Betteloni
220 m
Peschiera - Bivio Bar Luna
Peschiera - Bivio Bar Luna
490 m
Peschiera del Garda
310 m
Ricariche auto elettriche Ricariche auto elettriche
Lidl Peschiera del Garda
1,2 Km
Gardaland Hotel
2,5 Km
Lidl Peschiera del Garda BIS
2,9 Km
Scuole Scuole
scuola secondaria statale Felice Chiarle
510 m
Scuola secondaria Felice Chiarle
520 m
Scuola Elementare
2,4 Km
Scuole
2,9 Km
scuola primaria Ponti sul Mincio
2,9 Km
Farmacia Farmacia
Farmacia Dr. Ruzza
560 m
Farmacia Dr. Giubertoni
670 m
Dottor Giubertoni
670 m
Farmacia Dottor Piazza
1,1 Km
Farmacia Dr.ssa Elisabetta Corna
2,5 Km
Ospedali Ospedali
Casa di Cura Dottor Pederzoli
1,2 Km
Presidio Medico
2,7 Km
Supermercati Supermercati
Sigra Market
500 m
Penny
900 m
Lidl
1,1 Km
Conad
1,1 Km
Aldi
1,3 Km
Negozi Negozi
Salions
50 m
Le Spose di Graziella
70 m
Mr. Anthony
70 m
Masterplan
80 m
La Martin
90 m
Bar Bar
Snack Bar Voltoni
150 m
bar sole
550 m
Bar Stazione
640 m
Bar
1,0 Km
extro'
1,3 Km
Ristoranti Ristoranti
all' rologio
60 m
gustosa, bar & ristorante
70 m
Osteria Goto
70 m
Il Cantinone
80 m
Al Canal
80 m
Mostra tutto

Caratteristiche

Rif.:
60983837
Piano:
Su più livelli di 3
Totale piani:
3
Posti auto:
99
Condizionamento:
Autonomo
Ascensore:
No
Mostra tutto
Prezzo Prezzo
€ 450.000
Rata mutuo Rata mutuo
€ 2.138 / mese
Spese annue Spese annue
€ 0
Proponi il tuo prezzoProponi il tuo prezzo

Classe Energetica

D
D
D
D
D
D
D
D
D
EP globale non rinnovabile:
222.69 kW h/m² anno
EP globale rinnovabile:
152.07 kW h/m² anno
EP invernale del fabbricato:
EP estiva del fabbricato:
Anno di costruzione:
1990
Riscaldamento:
Autonomo
Tipo impianto:
Ad aria
Tipo alimentazione:
Altro

Ti interessa visionare l'immobile?

Fissa un appuntamento  Fissa un appuntamento

Richiedi informazioni

Clicca su Leggi per aprire l'informativa
* Questi campi sono obbligatori

Calcola il tuo mutuo

Semplice e senza impegno
Anticipo

( % )
Mutuo

( % )

pochi semplici passi

inserisci i tuoi dati
Questionario completato
Grazie per aver richiesto un appuntamento senza impegno con un nostro Consulente del Credito e Assicurativo.

Hai inserito correttamente tutti i dati necessari e a breve riceverai una e-mail con un link da convalidare per inviare i tuoi dati.
Affiliato
Industriale Desenzano Srl
Viale Motta, 149 25015 Desenzano Del Garda (BS)

Il nostro staff


  • Francesca Lanzini
    Affiliata

  • Andrea Bucci
    Collaboratore

  • Francesco Bellicini
    Affiliato

  • Alessia Fontana
    Coordinatrice

  • Stefano Ghidini
    Affiliato

  • Noemi Pagliara
    Collaboratrice

  • Alberto Rigoni
    Collaboratore

  • Susanna Vincenzi
    Collaboratrice
Viale Motta, 149 25015 Desenzano Del Garda (BS)
Zona: Desenzano-Sirmione-Lonato-Padenghe-Bedizzole-Peschiera del Garda
Mostra su mappa
Orari: LUN/VEN: 8:30/12:30 - 14:00/19:00 SABATO: 8:30/12:30
Affiliato
Industriale Desenzano Srl
Viale Motta, 149 25015 Desenzano Del Garda (BS)

2026 Tecnocasa Franchising S.p.A. - P. IVA 08365160152 - Via Monte Bianco 60/A 20089 Rozzano (MI). Ogni agenzia ha un proprio titolare ed è autonoma. Privacy policy | Policy utilizzo | Cookie policy