Negozio in vendita

Sirmione, Piazza Virgilio - Colombare
€ 215.000
Prezzo aggiornato
3 locali 3 locali
140 Mq 140 Mq
2 bagni 2 bagni

Negozio in vendita

Sirmione, Piazza Virgilio - Colombare

Descrizione annuncio

Proponiamo in vendita a redditto, con una resa del 8.2%, un negozio di 140mq sito a Sirmione in Piazza Virgilio


DESCRIZIONE E PARTICOLARITA'


Ubicazione: L'immobile che proponiamo in acquisto è un negozio posto al piano terra di un recente contesto a destinazione commerciale e direzionale a Sirmione (BS), più precisamente in posizione angolare tra Piazza Virgilio e Via XXIV Maggio, frontale alle Terme di Sirmione.


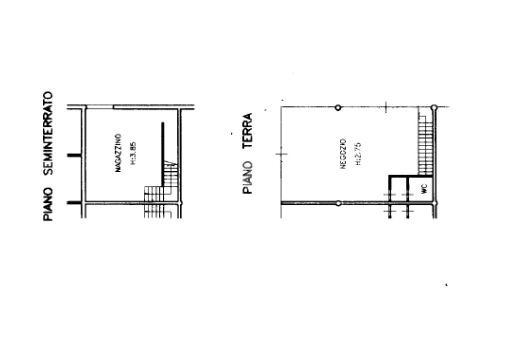
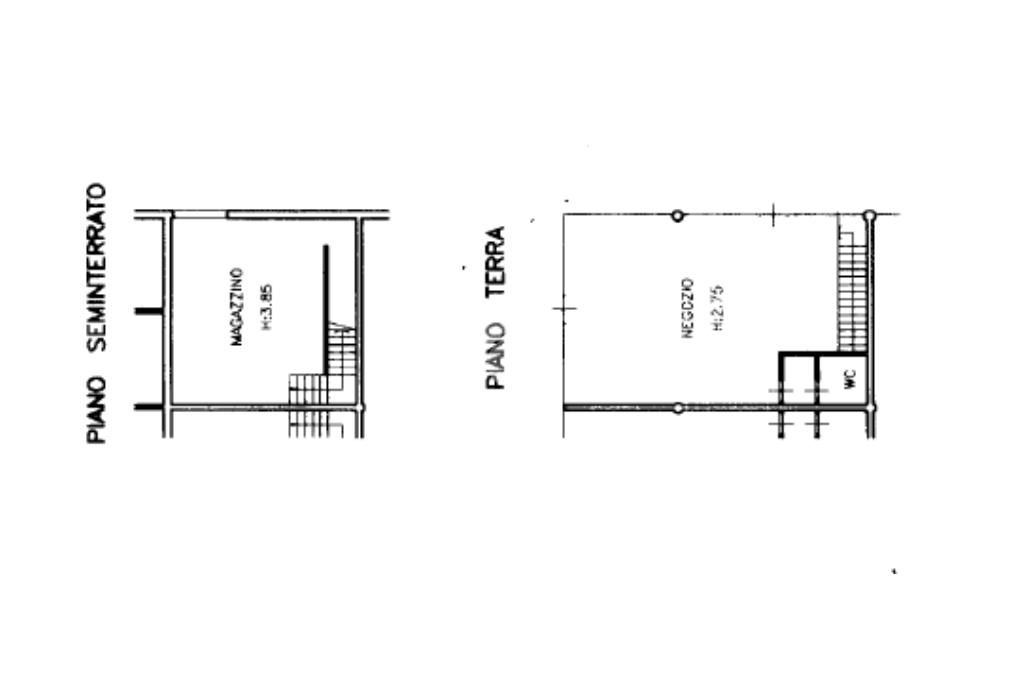
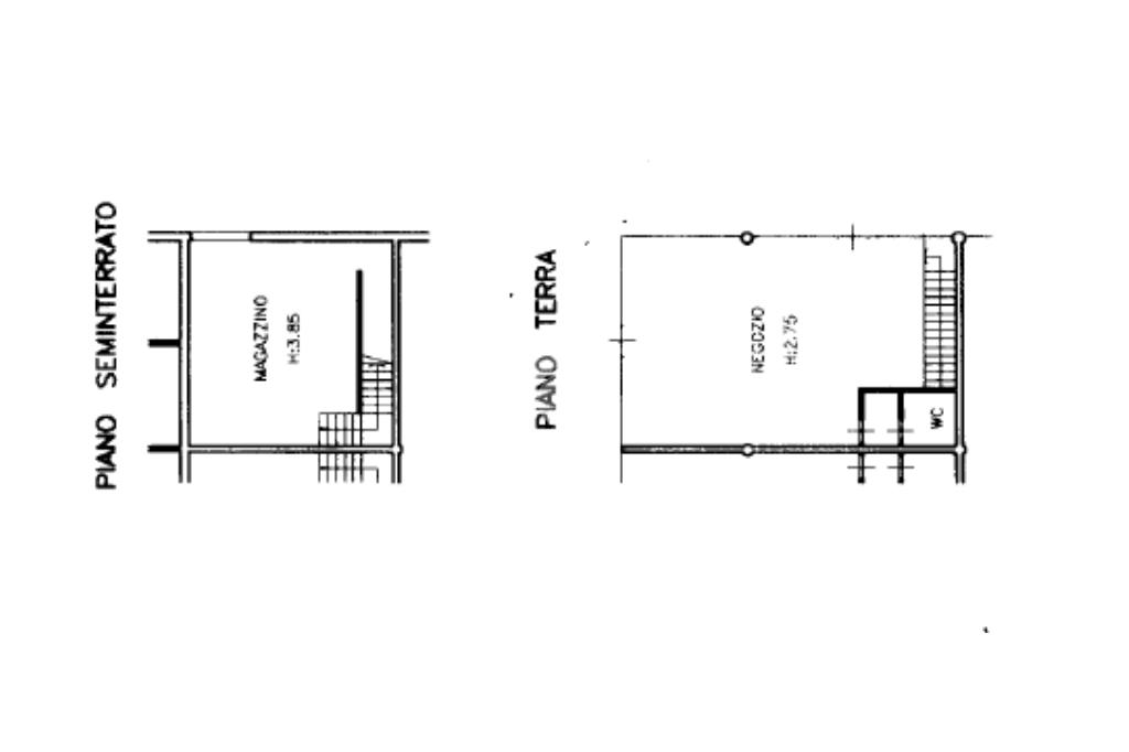
Superficie: La soluzione dispone di una superficie interna di 140 mq così ripartiti:

- 80 mq commerciali, dotati di grandi vetrine e distribuiti in open-space, oltre che un doppio accesso;

- 42 mq interrati, connessi tramite scala al piano terra e dotati di bocche di lupo;

- 22 mq di garage con serranda manuale, connesso al piano interrato.

Servizi: La struttura è dotata di n. 1 servizio igienico a norma disabili e una doccia.

Impianti: La soluzione è riscaldata e raffrescata tramite un impianto di climatizzazione a muro.

Richiesta economica acquisto: l'importo richiesto per la struttura è pari ad euro 215.000,00 non soggetti ad iva.

Rendita: Il contratto attualmente in essere ha decorrenza dicembre 2025 e garantisce una resa circa dell'8,2% ossia pari ad euro 18.000 annui.

Spese condominiali: sono previste delle spese condominiali di circa euro 1.000,00 annui.

Maggiori informazioni in agenzia.

UBICAZIONE E CONTESTO

Sirmione è un comune italiano di circa 8.300 abitanti della provincia di Brescia, in Lombardia, il cui centro storico sorge su una penisola che divide il basso lago di Garda. L'attività presentata è ubicata in un'alta zona di passaggio pedonale e veicolare ai piedi della penisola, nella frazione di Colombare. La zona è ben servita da pullman, navette e mezzi pubblici che permettono lo spostamento di residenti e turisti. Nei pressi dell'immobile troviamo diverse attività commerciali, quali parrucchieri, negozi, edicole, terme, scuole e la sede comunale. Sirmione è una delle più frequentate località di villeggiatura della provincia di Brescia. Il casello autostradale di Sirmione si trova sull'autostrada A4 in prossimità della località San Martino della Battaglia del comune di Desenzano.

Mostra tutto

Nelle vicinanze

Trasporto pubblico Trasporto pubblico
Trasporto pubblico
190 m
Via XXV Aprile
Via XXV Aprile
700 m
Sirmione
180 m
Ricariche auto elettriche Ricariche auto elettriche
Hotel Ocelle
710 m
Scuole Scuole
Scuola materna Maria Albina Durighello
2,9 Km
Farmacia Farmacia
Farmacia
240 m
farmacia
2,9 Km
Supermercati Supermercati
Carrefour
3,0 Km
Negozi Negozi
Alimentari
100 m
Negozi
2,8 Km
Bar Bar
Bar alla Torre
130 m
Bar
730 m
Il Fiore
2,3 Km
Ristoranti Ristoranti
Pizzeria Scaligeri's
30 m
Leo's Hamburgeria
40 m
La Rucola 2.0
40 m
Risorgimento
60 m
Pizzeria Scala
70 m
Mostra tutto

Caratteristiche

Rif.:
61153746
Piano:
Su più livelli di 2
Totale piani:
2
Box:
1
Posti auto:
50
Balconi:
1
Mostra tutto
Prezzo Prezzo
€ 215.000
Rata mutuo Rata mutuo
€ 1.021 / mese
Spese annue Spese annue
€ 1.000
Proponi il tuo prezzoProponi il tuo prezzo

Classe Energetica

Questo immobile è esente da classe energetica
Anno di costruzione:
1990
Riscaldamento:
Autonomo
Tipo impianto:
Ad aria
Tipo alimentazione:
Altro

Prezzo ridotto di €1 (7%%)

Ti interessa visionare l'immobile?

Fissa un appuntamento  Fissa un appuntamento

Richiedi informazioni

Clicca su Leggi per aprire l'informativa
* Questi campi sono obbligatori

Calcola il tuo mutuo

Semplice e senza impegno
Anticipo

( % )
Mutuo

( % )

pochi semplici passi

inserisci i tuoi dati
Questionario completato
Grazie per aver richiesto un appuntamento senza impegno con un nostro Consulente del Credito e Assicurativo.

Hai inserito correttamente tutti i dati necessari e a breve riceverai una e-mail con un link da convalidare per inviare i tuoi dati.
Affiliato
Industriale Desenzano Srl
Viale Motta, 149 25015 Desenzano Del Garda (BS)

Il nostro staff


  • Francesca Lanzini
    Affiliata

  • Andrea Bucci
    Collaboratore

  • Francesco Bellicini
    Affiliato

  • Alessia Fontana
    Coordinatrice

  • Stefano Ghidini
    Affiliato

  • Noemi Pagliara
    Collaboratrice

  • Alberto Rigoni
    Collaboratore

  • Susanna Vincenzi
    Collaboratrice
Viale Motta, 149 25015 Desenzano Del Garda (BS)
Zona: Desenzano-Sirmione-Lonato-Padenghe-Bedizzole-Peschiera del Garda
Mostra su mappa
Orari: LUN/VEN: 8:30/12:30 - 14:00/19:00 SABATO: 8:30/12:30
Affiliato
Industriale Desenzano Srl
Viale Motta, 149 25015 Desenzano Del Garda (BS)

2026 Tecnocasa Franchising S.p.A. - P. IVA 08365160152 - Via Monte Bianco 60/A 20089 Rozzano (MI). Ogni agenzia ha un proprio titolare ed è autonoma. Privacy policy | Policy utilizzo | Cookie policy